 |
|
 |
| Автор |
Сообщение
|
AIN

Зарегистрирован: Вс 4 Март 2018, 23:53
Сообщения: 13
Регион: Тверь
|
Добавлено:
Пт 9 Март 2018, 21:20
|
  |
Доброго вечера уважаемым печникам.
Ищу исполнителя на банную печку, ну и советов/пожеланий по нижеизложенному.
Баня в пригороде Твери – 15 км от города. Электричество, вода есть.
По срокам хотелось бы начать в мае-июне и уложиться за 2-3 недели.
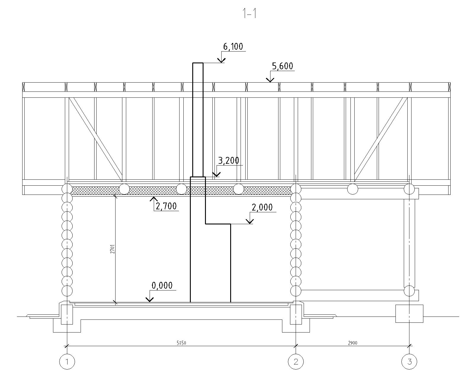
Сруб в лапу из хвойного бревна 260-280. В осях 5,85х5,85 м.
Кровля - Шинглас. Чердак пока что холодный, но возможно будет мансарда.
Парная 2,4х2,7 м, высота 2,6 м, S=6,72 м2, V=17,5 м3 . Сейчас до низа балок 2,75, но в парной потолок буду опускать.
Комната отдыха 15,23 м2, моечная 8,24 м2.
Во всех помещениях будет электрический теплый пол для поддержания зимой +5°С и небольшого предварительного прогрева перед топкой.
Топка раз в неделю. 4-6 человек. Режим нужен 60°/60% на протяжении 3-4 часов. Топить буду березой, ольхой, осиной.
Печь двумя сторонами в парной, одной в моечной, одной в КО. Фундамент готов 1030х1030, но можно ещё на кирпич расширить при необходимости.
Топка из КО. Топочная дверца остекленная (небольшая), остальные глухие. Литье – SVT.
Регистр для воды не нужен. ГВС будет от электроводонагревателя.
Печь с закрытой каменкой, периодического действия. Двухконтурная. Шамотное ядро (на плашку ?) забрать в обойму из уголка и полосы.
Схема или пламенная, или с обращенный пламенем.
Кирпич – Витебск или Боровичи. Особенная красота и архитектурные изыски не нужны совсем. Просто аккуратная кладка под расшивку и голая функциональность.
Насчет трубы пока не определился – или кирпичная или Шидель выше перекрытия чердачного. Полная высота печи с трубой 6,1 м.
Не хватает соображения понять нужны ли в моем случае конвекционные каналы в КО и/или в парной. Нужно ли делать футеровку каналов или только напротив хайла, или вообще не делать её? Может быть нужно сделать зеркала (вроде так называются участки с кирпичом на ребро, да?) в каналах чтоб быстрее грелась. Тоже не понимаю…
Хочется:
- как и большинству пользователей, относительно быстрого прогрева с +5° до рабочего режима часов за 6;
- чтоб подольше проработала без капремонта, да и оный ремонт чтоб потом не был очень уж сложным, по возможности;
- от печника – чтобы сделал проект (или предложил готовый), разъяснил сомнительные вопросы, помог с выбором материалов и комплектующих, чтобы у него были рабочие (построенные) близкие аналоги таких печей; в дальнейшем мог помочь советом и/или делом в случае каких-то неполадок, чтобы дал гарантию на свою работу;
Не хочется:
- танцев с бубном вокруг задвижек и наблюдений за цветом дыма каждые 5 минут;
- чтоб стоила печка как чугунный мост, бюджет довольно ограниченный.
С печником сделаем коротенький договорчик и подробное ТЗ.
PS Высота печи и расположение трубы на чертеже - ориентировочные.
|
| Описание: |
|
| Размер файла: |
126.61 КБ |
| Просмотров: |
746 раз(а) |

|
| Описание: |
|
| Размер файла: |
142.81 КБ |
| Просмотров: |
754 раз(а) |

|
| Описание: |
|
| Размер файла: |
101.88 КБ |
| Просмотров: |
732 раз(а) |

|
|
|
  |
 |
Селиван Виктор
Проектировщик

Зарегистрирован: Сб 2 Январь 2010, 14:33
Сообщения: 6689
Регион: г.Челябинск
|
Добавлено:
Сб 10 Март 2018, 06:28
|
  |
| AIN писал(а): |
Ищу исполнителя на банную печку, ну и советов/пожеланий по нижеизложенному.
Топка раз в неделю. 4-6 человек. Режим нужен 60°/60% на протяжении 3-4 часов. Топить буду березой, ольхой, осиной. |
Это реально.
| AIN писал(а): |
| Печь с закрытой каменкой, периодического действия. Двухконтурная. Шамотное ядро (на плашку ?) забрать в обойму из уголка и полосы.Схема или пламенная, или с обращенный пламенем. |
С закрытой каменкой -это уже печь постоянного действия -это когда огонь(дымовые газы) не идут через закаладку.Шамотное ядро на плашку не есть гут.Пламенная или обращённая ? В каждой конструкции есть свои +и-
.
| AIN писал(а): |
| Насчет трубы пока не определился – или кирпичная или Шидель выше перекрытия чердачного. Полная высота печи с трубой 6,1 м. |
Шидель ,как и другие керамические трубы не желательны для банной печи -много пожаров от них
| AIN писал(а): |
| Не хватает соображения понять нужны ли в моем случае конвекционные каналы в КО и/или в парной. Нужно ли делать футеровку каналов или только напротив хайла, или вообще не делать её? Может быть нужно сделать зеркала (вроде так называются участки с кирпичом на ребро, да?) в каналах чтоб быстрее грелась. Тоже не понимаю… |
Шамотный сердечник и подразумевает в себе и каналы для дым. газов. Снаружи облицовка из полнотелых кирпичей с конвекционным зазором. Конвекция обязательна. Обогревать чисто нагретыми и перегретыми кирпичными поверхностями на печи -не есть гут
| AIN писал(а): |
Хочется:
- как и большинству пользователей, относительно быстрого прогрева с +5° до рабочего режима часов за 6;
- чтоб подольше проработала без капремонта, да и оный ремонт чтоб потом не был очень уж сложным, по возможности;
- от печника – чтобы сделал проект (или предложил готовый), разъяснил сомнительные вопросы, помог с выбором материалов и комплектующих, чтобы у него были рабочие (построенные) близкие аналоги таких печей; в дальнейшем мог помочь советом и/или делом в случае каких-то неполадок, чтобы дал гарантию на свою работу;
Не хочется:
- танцев с бубном вокруг задвижек и наблюдений за цветом дыма каждые 5 минут;
- чтоб стоила печка как чугунный мост, бюджет довольно ограниченный.
С печником сделаем коротенький договорчик и подробное ТЗ.
PS Высота печи и расположение трубы на чертеже - ориентировочные. |
Требования реальные и выполнимые -если повезёт с печником. Но чем лучше долговечность и лучше и надёжнее конструкция -тем и выше цена за конечное изделие. И стоимость материалов тоже при этом увеличивается. Есть ,к примеру,ширпотребный шамот-который на каждом углу продаётся -а есть более качественный и естественно дороже. Да и не продают его на каждом углу. Так и по другим материалам.
По ценам за услуги -может быть и дорого и дёшево . Смотря на кого нарвётесь. А договорчик -только для порядочных и ответственных исполнителей -а их ещё надо найти.
Личку уже завалили предложениями? Здесь очень мого тусуется "печников"....... будьте осторожны.
|
|
|
|
     |
 |
AIN

Зарегистрирован: Вс 4 Март 2018, 23:53
Сообщения: 13
Регион: Тверь
|
Добавлено:
Сб 10 Март 2018, 22:13
|
  |
Виктор, доброго вечера.
Спасибо за обстоятельный ответ.
| Цитата: |
| С закрытой каменкой -это уже печь постоянного действия -это когда огонь(дымовые газы) не идут через закладку |
Имел в виду каменку в корпусе печи, за дверцей, а не с открыто лежащими камнями. Просто не знаю как это правильно обозвать. И именно периодическую.
| Цитата: |
| Шамотное ядро на плашку не есть гут. |
Вот почему-то нет однозначности в этом вопросе. Одни говорят, что если класть шамот на ребро, то проживет он недолго; другие - что при кладке на пласть тоже потрескается от неравномерного прогрева. Третьи вообще делают на ребро, но в два слоя...
Не понимаю... Таки на ребро делать лучше, да?
| Цитата: |
| Пламенная или обращённая ? В каждой конструкции есть свои +и- |
Вот и попробуй выбери, когда это твоя первая в жизни печка Насколько я понимаю, разница только в уровне расположения хайла - выше или ниже. А прочих принципиальных различий в конструктиве почти что и нет. Т.е. можно ещё месяцок-другой покурить форумы и принять решение к началу строительства.
| Цитата: |
| Шидель ,как и другие керамические трубы не желательны для банной печи -много пожаров от них |
Вот этого не знал, спасибо.
А что скажете про сэндвич из нержавейки? Тоже не стоит?
Кирпичная конечно хорошо, но и минусов хватает - меньше ремонтопригодность печи (а коренная труба это дорогое удовольствие); сруб у меня свежий, усадку ещё будет давать как минимум год. Как в этом случае делать распушку над кровлей?
| Цитата: |
| Шамотный сердечник и подразумевает в себе и каналы для дым. газов. Снаружи облицовка из полнотелых кирпичей с конвекционным зазором. Конвекция обязательна. Обогревать чисто нагретыми и перегретыми кирпичными поверхностями на печи -не есть гут |
Понял, спасибо.
| Цитата: |
| Требования реальные и выполнимые -если повезёт с печником. Но чем лучше долговечность и лучше и надёжнее конструкция -тем и выше цена за конечное изделие. И стоимость материалов тоже при этом увеличивается. Есть ,к примеру,ширпотребный шамот-который на каждом углу продаётся -а есть более качественный и естественно дороже. Да и не продают его на каждом углу. Так и по другим материалам. |
Вот тут как раз и хочется советов от печника. Чтобы оптимальный вариант выбрать.
| Цитата: |
По ценам за услуги - может быть и дорого и дёшево . Смотря на кого нарвётесь. А договорчик - только для порядочных и ответственных исполнителей - а их ещё надо найти.
Личку уже завалили предложениями? Здесь очень много тусуется "печников"....... будьте осторожны. |
Ну, не то чтобы завалили, но есть предложения. Буду выбирать...
Ещё раз спасибо!
|
|
|
|
  |
 |
Александр Шалагин

Зарегистрирован: Пт 2 Январь 2009, 18:00
Сообщения: 1341
Регион: Киров
|
Добавлено:
Сб 10 Март 2018, 22:32
|
  |
| AIN писал(а): |
Парная 2,4х2,7 м, высота 2,6 м, S=6,72 м2, V=17,5 м3 . Сейчас до низа балок 2,75, но в парной потолок буду опускать.
Комната отдыха 15,23 м2, моечная 8,24 м2.
Во всех помещениях будет электрический теплый пол для поддержания зимой +5°С и небольшого предварительного прогрева перед топкой.
Топка раз в неделю. 4-6 человек. Режим нужен 60°/60% на протяжении 3-4 часов. Топить буду березой, ольхой, осиной.
Печь двумя сторонами в парной, одной в моечной, одной в КО. Фундамент готов 1030х1030, но можно ещё на кирпич расширить при необходимости.
|
Вам подойдет банная печь периодического действия "Легкий Пар", размером в плане 1150х1020мм.
|
|
|
|
    |
 |
Селиван Виктор
Проектировщик

Зарегистрирован: Сб 2 Январь 2010, 14:33
Сообщения: 6689
Регион: г.Челябинск
|
Добавлено:
Сб 10 Март 2018, 22:53
|
  |
| AIN писал(а): |
.Вот почему-то нет однозначности в этом вопросе. Одни говорят, что если класть шамот на ребро, то проживет он недолго; другие - что при кладке на пласть тоже потрескается от неравномерного прогрева. Третьи вообще делают на ребро, но в два слоя...
Не понимаю... Таки на ребро делать лучше, да? |
В два,кое где и в три слоя на ложёк(ребро)
| AIN писал(а): |
| А что скажете про сэндвич из нержавейки? Тоже не стоит? |
Если металлический сэндвич -то только aisi310s внутренняя гильза и толщиной 1-2мм. Теплоизоляция только муллитокремнеземистая толщиной 50 - 100мм
|
|
|
|
     |
 |
AIN

Зарегистрирован: Вс 4 Март 2018, 23:53
Сообщения: 13
Регион: Тверь
|
Добавлено:
Сб 10 Март 2018, 23:13
|
  |
|
  |
 |
AIN

Зарегистрирован: Вс 4 Март 2018, 23:53
Сообщения: 13
Регион: Тверь
|
Добавлено:
Вс 11 Март 2018, 01:11
|
  |
| Александр Шалагин писал(а): |
| Вам подойдет банная печь периодического действия "Легкий Пар", размером в плане 1150х1020мм. |
Спасибо, но надеюсь, что печник предложит свой проект.
С удовольствием сложил бы печку сам. Руки растут из правильного места, да и интересно попробовать, но потратить на это половину лета, к сожалению не могу.
|
|
|
|
  |
 |
Furby

Зарегистрирован: Пт 8 Май 2015, 15:33
Сообщения: 417
Регион: Биробиджан
|
Добавлено:
Вс 11 Март 2018, 06:13
|
  |
| AIN писал(а): |
С удовольствием сложил бы печку сам. Руки растут из правильного места, да и интересно попробовать, но потратить на это половину лета, к сожалению не могу. |
Предложите себя в качестве подсобника. Как вариант,
|
|
|
|
  |
 |
AIN

Зарегистрирован: Вс 4 Март 2018, 23:53
Сообщения: 13
Регион: Тверь
|
Добавлено:
Вс 11 Март 2018, 12:51
|
  |
| Furby писал(а): |
Предложите себя в качестве подсобника. Как вариант,  |
А почему бы и нет? Вполне возможно
|
|
|
|
  |
 |
AIN

Зарегистрирован: Вс 4 Март 2018, 23:53
Сообщения: 13
Регион: Тверь
|
Добавлено:
Вс 11 Март 2018, 13:03
|
  |
Небольшой update.
Фактический размер фундамента - 1030 ширина по фасаду, 1200 длина (глубина). Т.е. можно поставить печь 4х4,5.
Футеровку топки делаем на ребро.
Труба - кирпичная.
|
|
|
|
  |
 |
Павел_П

Зарегистрирован: Чт 6 Август 2009, 09:12
Сообщения: 423
Регион: Москва
|
Добавлено:
Пн 12 Март 2018, 23:05
|
  |
| AIN писал(а): |
| ... Труба - кирпичная. |
а почитайте про трехконтурные дымоходы КДМ. Как раз банный вариант имхо. Можно интересный "наборчик" сделать для отвода дыма и вентиляции "в одном флаконе".
|
_________________ щи да каша - пища наша
|
|
   |
 |
AIN

Зарегистрирован: Вс 4 Март 2018, 23:53
Сообщения: 13
Регион: Тверь
|
Добавлено:
Вт 13 Март 2018, 00:31
|
  |
| Павел_П писал(а): |
| AIN писал(а): |
| ... Труба - кирпичная. |
а почитайте про трехконтурные дымоходы КДМ. Как раз банный вариант имхо. Можно интересный "наборчик" сделать для отвода дыма и вентиляции "в одном флаконе". |
Посмотрю, спасибо. Хотя вентиляция у меня в бане вообще не предусмотрена. Проветривать будем залпово через двери-окна.
Сейчас изучаю Крафт и Вулкан. У них есть изделия из хорошей стали и с правильным утеплителем. Цена вот только не радует
|
|
|
|
  |
 |
Евгений Колчин

Зарегистрирован: Чт 3 Октябрь 2002, 06:26
Сообщения: 10144
Регион: Москва
|
Добавлено:
Вт 13 Март 2018, 08:03
|
  |
|
      |
 |
смирнов иван
Зарегистрирован: Чт 16 Январь 2014, 13:06
Сообщения: 1169
Регион: москва
|
Добавлено:
Вт 13 Март 2018, 09:30
|
  |
И чем кирпич не угодил. Термостойкость хорошая . Теплоемкость тоже. Конденсата не будет . Только выпендриться?
|
_________________ Камины , печи , барбекю , русские печи , ремонт ,переделка.8(903)286-88-58
|
|
    |
 |
AIN

Зарегистрирован: Вс 4 Март 2018, 23:53
Сообщения: 13
Регион: Тверь
|
Добавлено:
Вт 13 Март 2018, 09:33
|
  |
| смирнов иван писал(а): |
| И чем кирпич не угодил. Термостойкость хорошая . Теплоемкость тоже. Конденсата не будет . Только выпендриться? |
А кто говорит что не угодил? Просто считаю нужным все варианты изучить и сравнить. А потом уж осознанно выбрать
На данный момент склоняюсь-таки к кирпичу.
|
|
|
|
  |
 |
AIN

Зарегистрирован: Вс 4 Март 2018, 23:53
Сообщения: 13
Регион: Тверь
|
Добавлено:
Вт 13 Март 2018, 09:36
|
  |
А по стоимости кирпич даже чуть ли не дешевле хорошего сэндвича получается.
|
|
|
|
  |
 |
смирнов иван
Зарегистрирован: Чт 16 Январь 2014, 13:06
Сообщения: 1169
Регион: москва
|
Добавлено:
Вт 13 Март 2018, 09:38
|
  |
| AIN писал(а): |
| А по стоимости кирпич даже чуть ли не дешевле хорошего сэндвича получается. |
Так и я о том же
|
_________________ Камины , печи , барбекю , русские печи , ремонт ,переделка.8(903)286-88-58
|
|
    |
 |
AIN

Зарегистрирован: Вс 4 Март 2018, 23:53
Сообщения: 13
Регион: Тверь
|
Добавлено:
Чт 15 Март 2018, 10:03
|
  |
С печником определился. Всем спасибо за участие и обсуждение.
По завершении работ отчитаюсь.
|
|
|
|
  |
 |
Куликов Андрей

Зарегистрирован: Вс 30 Январь 2011, 09:15
Сообщения: 1059
Регион: Мичуринск Тамбовская обл.
|
Добавлено:
Чт 15 Март 2018, 10:27
|
  |
Лучше откройте новую тему и выкладывайте процесс. Поиздеваются, конечно, но больше будет дельных советов.
Если печник адекватный, то не будет возражать и обоснует свои решения и примет советы.
А если будет против, то есть повод задуматься. И все нюансы в договор.
|
_________________ Тамбовский Волк не всем товарищ
|
|
    |
 |
AIN

Зарегистрирован: Вс 4 Март 2018, 23:53
Сообщения: 13
Регион: Тверь
|
Добавлено:
Чт 15 Март 2018, 10:33
|
  |
Да, возможно и так сделаю. В любом случае, начинаем мы только в конце мая - начале июня.
|
|
|
|
  |
 |
|
|
|
Следующая тема
Предыдущая тема
Вы не можете начинать темы Вы не можете отвечать на сообщения Вы не можете редактировать свои сообщения Вы не можете удалять свои сообщения Вы не можете голосовать в опросах Вы не можете добавлять приложения в этом форуме Вы можете скачивать файлы в этом форуме
|
|