| Автор |
Сообщение
|
Валерий Комаров
Зарегистрирован: Сб 14 Февраль 2015, 20:23
Сообщения: 5
Регион: Беларусь
|
Добавлено:
Сб 14 Февраль 2015, 21:36
|
  |
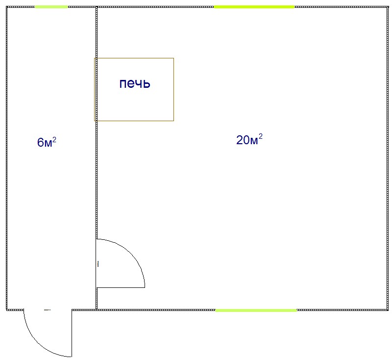
Здравствуйте, уважаемые форумчане. Имеется пристройка к основному жилищу, комната с корридором. Прошу совета по выбору отопительной печи. Необходимая информащия о пристройке во вложении.
|
| Описание: |
|
| Размер файла: |
40.75 КБ |
| Просмотров: |
602 раз(а) |

|
|
|
  |
 |
Андрей_Алексеевич

Зарегистрирован: Пн 13 Декабрь 2010, 19:17
Сообщения: 5940
Регион: малая родина Павлова, Скобелева, Циолковского, Уткиных и др.
|
Добавлено:
Сб 14 Февраль 2015, 22:44
|
  |
А печь нужна только отопительная?
Без варочной плиты?
|
_________________ Печник - милостью и промыслом Божиим.
Печное отопление частного дома и т.п., авторское сопровождение проектов, наставничество в т.ч. дистанционное, партнёрство в кладке печей.
89106130763 МТС
andrejka61@mail.ru
andrej.kuzmischev@yandex.ru
|
|
   |
 |
Валерий Комаров
Зарегистрирован: Сб 14 Февраль 2015, 20:23
Сообщения: 5
Регион: Беларусь
|
Добавлено:
Сб 14 Февраль 2015, 22:54
|
  |
Да, только отопительная. Забыл сказать дом для ПМЖ.
|
|
|
|
  |
 |
Валерий Комаров
Зарегистрирован: Сб 14 Февраль 2015, 20:23
Сообщения: 5
Регион: Беларусь
|
Добавлено:
Сб 14 Февраль 2015, 23:01
|
  |
|
  |
 |
internet_pechnik
Зарегистрирован: Вт 9 Апрель 2013, 19:51
Сообщения: 1892
Регион: belarus
|
Добавлено:
Вс 15 Февраль 2015, 06:01
|
  |
1.пробовали на наш местный форум зайти? там помогут и по телефону всё можно обсудить. http://vashdom.tut.by/forum/index.php?board=357.0
2. сами собираетесь делать?
3.Это каминопечь и конечно она подходит и даже меншую можно на всего то 26 квадратов, поставив ее спиной в коридор.Нет желания обсуждать именно этот проект, хотя там конечно же много чего есть к чему придраться.
|
|
|
|
  |
 |
Валерий Комаров
Зарегистрирован: Сб 14 Февраль 2015, 20:23
Сообщения: 5
Регион: Беларусь
|
Добавлено:
Вс 15 Февраль 2015, 10:57
|
  |
| internet_pechnik писал(а): |
1.пробовали на наш местный форум зайти? там помогут и по телефону всё можно обсудить. http://vashdom.tut.by/forum/index.php?board=357.0
2. сами собираетесь делать?
3.Это каминопечь и конечно она подходит и даже меншую можно на всего то 26 квадратов, поставив ее спиной в коридор.Нет желания обсуждать именно этот проект, хотя там конечно же много чего есть к чему придраться.  |
1.На местный форум не заходил, но обязательно зайду.
2.Да, хочу попробовать сам.
3.Хочется именно каминопечь. Что бы топка была большая, да и вид глаз радовал.
Рассматривал проекты только по таким параметрам: топка большая( ширина полтора кирпича, длина два кирпича), футеровка шамотным кирпичем, мощность не менее 2,5 кВт ну и внешний вид. А что думаете по поводу этого чертежа http://mastersofcity.ru/publ/otopitelnye_pechi/pech_gollandka_chertezhi_i_opisanie/6-1-0-19
|
|
|
|
  |
 |
internet_pechnik
Зарегистрирован: Вт 9 Апрель 2013, 19:51
Сообщения: 1892
Регион: belarus
|
Добавлено:
Вс 15 Февраль 2015, 13:03
|
  |
что тут думать...у каждого есть свои варианты решения такой печи и свои схемы. по сути они похожи но могут сильно отличаться.
Там на фотке печь в стене и доски вплотняк.лажа.
|
|
|
|
  |
 |
Валерий Комаров
Зарегистрирован: Сб 14 Февраль 2015, 20:23
Сообщения: 5
Регион: Беларусь
|
Добавлено:
Вс 15 Февраль 2015, 13:09
|
  |
Расположение печи понятно. Интересует порядовка. Для начинающих в той статье мало информации.
|
|
|
|
  |
 |
Мангилев Сергей
Зарегистрирован: Сб 15 Октябрь 2011, 16:09
Сообщения: 978
Регион: Советск
|
Добавлено:
Вс 15 Февраль 2015, 16:58
|
  |
В таком размере, делал осенью и тоже расположение 1/3-2/3, опускные сделал вперед, плюс сапог вниз, получилось самый раз, но у меня 42 квадрата было. Осле езе 2 месяца там работал и топил. Топил 1 раз держал для работы 16-18. Если дров чуть болше то работать жарко. Вобшем норм. печь вклячил 7-8 полен и нормально.
|
|
|
|
     |
 |
|
|