 |
|
 |
| Автор |
Сообщение
|
Vadim67
Зарегистрирован: Сб 21 Ноябрь 2015, 22:14
Сообщения: 9
Регион: Москва
|
Добавлено:
Сб 21 Ноябрь 2015, 22:31
|
  |
Добрый день!
Нужна печь в дом. Отопление будет - радиаторы. Печь в основном для красоты и на случай какой-нибудь аварии отопления. Постоянно топится наверно не будет.
Для печи оставлен проем в стене ширина 1,3 м. Топится будет из кухни-столовой, ее площадь 40 м2, коридор соединяется с кухней, его площадь 10 м2 это единое помещение. Задняя сторона печи выходит в спальню - 12 м2.
Высота помещений сейчас от плиты пола до плиты перекрытия 3,4 м. Будет наливаться стяжка и опускаться потолок, итоговая высота будет примерно 3,2м.
Под единой крышей с домом веранда. Там хочется барбекю. Ничего сильно сложного - мангал и два крыла слева-справа - мойка и рабочий стол.
В дом сейчас затащили булерьян его можно топить и будет какой-никакой плюс. Веранда открытая, просто под временной крышей. Крыша - рубероид.
Большой спешки нет, но хотелось бы что-то за зиму сделать.
Связь
девятьсот три - 652-14-шестьдесят девять
vahro собака yandex
|
Последний раз редактировалось: Vadim67 (Сб 21 Ноябрь 2015, 22:49), всего редактировалось 1 раз |
|
  |
 |
Vadim67
Зарегистрирован: Сб 21 Ноябрь 2015, 22:14
Сообщения: 9
Регион: Москва
|
Добавлено:
Сб 21 Ноябрь 2015, 22:46
|
  |
Печь понравилясь такая
|
| Описание: |
|
| Размер файла: |
132.49 КБ |
| Просмотров: |
776 раз(а) |

|
|
|
  |
 |
Vadim67
Зарегистрирован: Сб 21 Ноябрь 2015, 22:14
Сообщения: 9
Регион: Москва
|
Добавлено:
Сб 21 Ноябрь 2015, 22:47
|
  |
Барбекю примерно в таком варианте
|
| Описание: |
|
| Размер файла: |
38.94 КБ |
| Просмотров: |
659 раз(а) |

|
|
|
  |
 |
Гребенчюк Андрей

Зарегистрирован: Чт 9 Сентябрь 2010, 17:23
Сообщения: 1211
Регион: Ленинградская область
|
Добавлено:
Вс 22 Ноябрь 2015, 02:33
|
  |
Предложу такой вариант печи, барбекю ( с хлебной можно убрать и стенку тоже ) или просто барбекю. Как с трубой будет трубу то же или уже есть трубный стояк.
|
|
|
|
  |
 |
kamin177

Зарегистрирован: Вт 13 Октябрь 2015, 22:41
Сообщения: 17
Регион: Щелково
|
Добавлено:
Вс 22 Ноябрь 2015, 12:33
|
  |
можно поставить чугунную топку (стекло на 2 стороны)
примерно такого вида -
затем пригласить печника, который красиво все оформит.
сможете любоваться огнем и из кухни и из спальни.
Правда цены на чугунку кусаются.
|
|
|
|
   |
 |
смирнов иван
Зарегистрирован: Чт 16 Январь 2014, 13:06
Сообщения: 1171
Регион: москва
|
Добавлено:
Вс 22 Ноябрь 2015, 13:31
|
  |
Топка не самый лучший вариант. При открытии дверок дымят почти неизбежно.
|
_________________ Камины , печи , барбекю , русские печи , ремонт ,переделка.8(903)286-88-58
|
|
    |
 |
Vadim67
Зарегистрирован: Сб 21 Ноябрь 2015, 22:14
Сообщения: 9
Регион: Москва
|
Добавлено:
Вс 22 Ноябрь 2015, 22:30
|
  |
Спасибо за ответы и сюда и на почту. Вникаю в вопрос.
Чугунную топку не хотим. Хотим именно кирпичную печь.
С кирпичем определились - супруге нравится коричневый.
Лоде видимо будет совсем не бюджетно. Может быть кирово-чепецкий?
Литье - хотим большую дверь, чтобы огонь было видно.
Высоту второго этажа померять не могу. Рабочие уехали, а одному неудобно.
По чертежам должно быть около 4,5 м.
В перекрытии оставлен проход 55х55 под дымоход, попадает между стропил.
Было предложение со 2го этажа ставить сендвич. Можно поставить что-то временное и с трубой закончить по теплу.
Для барбекю тоже труба должна пройти между стропил. Барбекю жестко не привязано можно немного двигать в зависимости от проекта.
Электричество есть. Вода есть. Жить не где. Можно в доме, но условия спартанские или договариваться как-то в деревне или приезжать-уезжать.
|
|
|
|
  |
 |
Vadim67
Зарегистрирован: Сб 21 Ноябрь 2015, 22:14
Сообщения: 9
Регион: Москва
|
Добавлено:
Вс 22 Ноябрь 2015, 22:40
|
  |
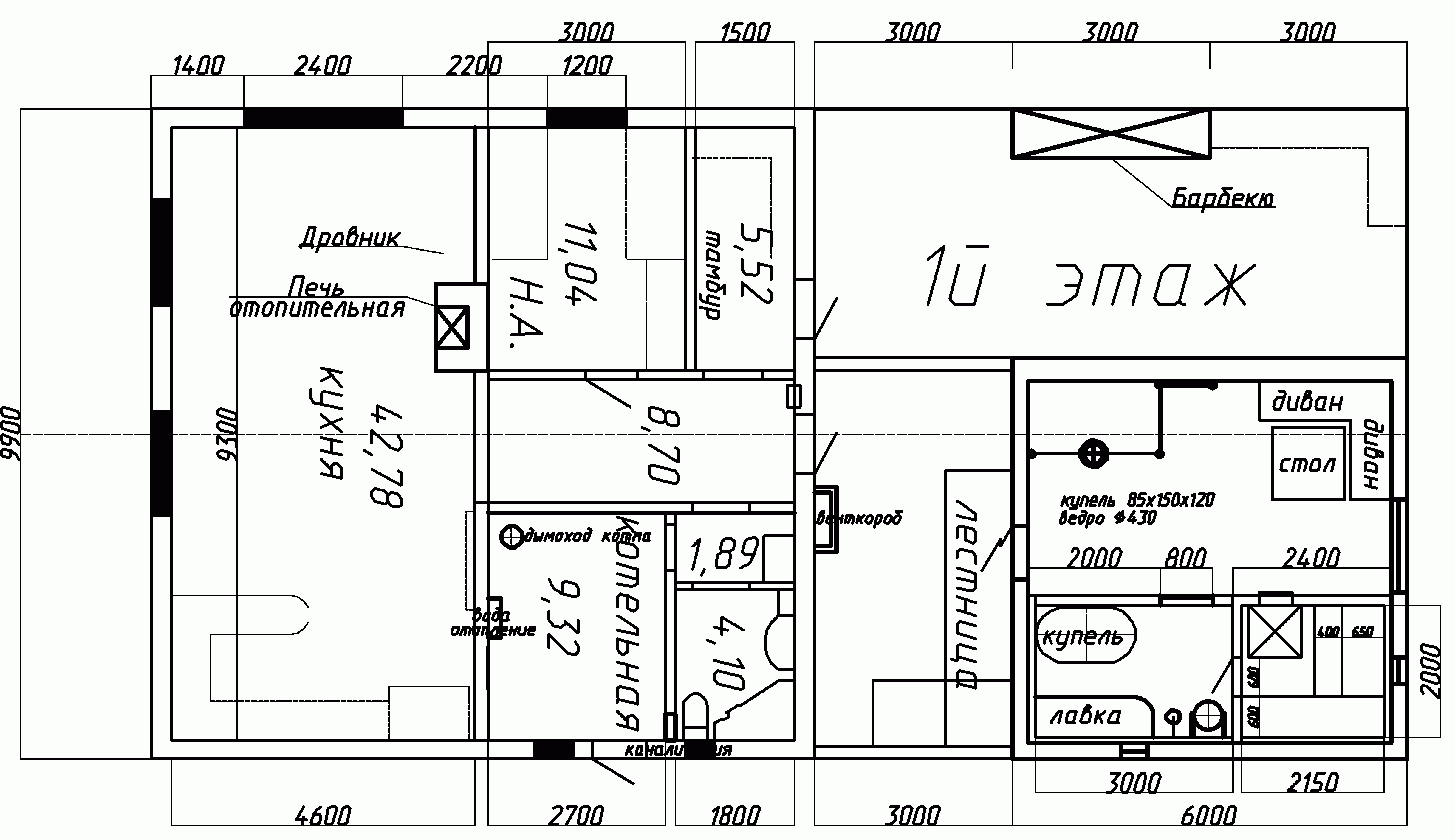
План дома.
Он реально немного не такой по факту, спасибо строителям. Но в части печь-барбекю все более-менее правильно.
|
| Описание: |
|
| Размер файла: |
172.66 КБ |
| Просмотров: |
801 раз(а) |

|
|
|
  |
 |
смирнов иван
Зарегистрирован: Чт 16 Январь 2014, 13:06
Сообщения: 1171
Регион: москва
|
Добавлено:
Вс 22 Ноябрь 2015, 22:40
|
  |
Сэндвич более пожароопасен. По - возможности, желательно кирпичную трубу. Вывод на крышу возможен до минус10 на формиате.
Кирово чепецкий кирпич вполне разумный вариант. Соотношение цена - качество наиболее приличное.
Никаких особых проблем по размещению нет. Тем более, что печь будет использоваться как резервная.
|
_________________ Камины , печи , барбекю , русские печи , ремонт ,переделка.8(903)286-88-58
|
|
    |
 |
Vadim67
Зарегистрирован: Сб 21 Ноябрь 2015, 22:14
Сообщения: 9
Регион: Москва
|
Добавлено:
Вс 22 Ноябрь 2015, 23:22
|
  |
Я не против кирпичной трубы. Просто мне объясняют что будет и дороже и сложнее особенно по холоду.
По барбекю. Вернее по кирпичу.
На веранде 5 металлических столбов держат балки. Профиль 100х100. Хотелось бы их тоже обложить кирпичем. Высота их метра 4. И еще недалеко колодец. И его хотелось бы обложить тем же кирпичем. Чтобы было все в одном стиле.
Я понимаю что напрягать печника столбами и колодцем не гуманно и просто дорого. Лучше на эти работы привлечь каменьщика, но вот прикинуть количество по кирпичу и завести одним разом.
Еще по барбекю - задняя стенка выходит в сад. Я на ней хотел расположить краны для летней воды, поэтому стенку наверно лучше поднять повыше. Андрей Гребенюк выкладывал эскиз, но он почему-то пропал - видимо как-то так.
И вопрос.
Смотрю сейчас чертежи и фотографии - в основном барбекю это целый комплекс.
Мы хотели просто мангал. А там еще масса всего бывает. Может что-то еще добавить нужное? Проект в любом случае будет не копеечный...
|
|
|
|
  |
 |
Гребенчюк Андрей

Зарегистрирован: Чт 9 Сентябрь 2010, 17:23
Сообщения: 1211
Регион: Ленинградская область
|
Добавлено:
Вс 22 Ноябрь 2015, 23:29
|
  |
Кучу печей стоит на сендвичах и не чего не горят, те же банные или каминные топки, у меня тоже есть печи подключенные к трубе сендвич и стоят уже не первый год. Тем более если с фундаментом нагрузку нельзя большую. А то начинается, можно и так на сендвич ставить со всеми против пожарными соблюдения условий и все будет стоять. А то если так говорить то нельзя это нельзя во обще строительство печей нужно во обще запретить. По поводу кирово чепецкого много по нему нареканий по качеству даже здесь на форуме . Проекты удалил по этому и пропал.
|
|
|
|
  |
 |
смирнов иван
Зарегистрирован: Чт 16 Январь 2014, 13:06
Сообщения: 1171
Регион: москва
|
Добавлено:
Вс 22 Ноябрь 2015, 23:38
|
  |
Завезти кирпич зараз никто не мешает.
В барбекюшнице, как правило, присутствует плита под казан, пригодная для готовки ( этакий удобно - универсальный вариант), разделочный стол. Может быть коптильня, хлебная камера либо мини- русская печь. Короче, вариантов сколько угодно.
Сэндвич, особенно приличного качества, достаточно дорог и экономия, по сравнению к кирпичной трубой выйдет копеечная, а ежели кому возиться неохота, это другой разговор.
Срок службы сэндвича около 10 лет, что бы не утверждала реклама,. Кирпичная же труба может пережить не одну печь. Кстати, указанный в Вашем сообщении телефон действителен?
|
_________________ Камины , печи , барбекю , русские печи , ремонт ,переделка.8(903)286-88-58
|
|
    |
 |
смирнов иван
Зарегистрирован: Чт 16 Январь 2014, 13:06
Сообщения: 1171
Регион: москва
|
Добавлено:
Вс 22 Ноябрь 2015, 23:42
|
  |
| Гребенюк Андрей писал(а): |
| Кучу печей стоит на сендвичах и не чего не горят, те же банные или каминные топки, у меня тоже есть печи подключенные к трубе сендвич и стоят уже не первый год. Тем более если с фундаментом нагрузку нельзя большую. А то начинается, можно и так на сендвич ставить со всеми против пожарными соблюдения условий и все будет стоять. А то если так говорить то нельзя это нельзя во обще строительство печей нужно во обще запретить. По поводу кирово чепецкого много по нему нареканий по качеству даже здесь на форуме . Проекты удалил по этому и пропал. |
Сэндвич пожароопасен. Андрей, глупо отрицать, что греется он значительно больше и срок службы ниже. По поводу кировского кирпича. Идеального нет. Даже у lode есть к чему придраться. А за свои деньги киров вне конкуренции. Витебский становится все хуже и хуже. И что за фундамент, если он не способен выдержать вес печи с трубой. Причем. Средний вес печи около 5 тонн из них труба около тонны- полутора. И велика выгода - то.
|
_________________ Камины , печи , барбекю , русские печи , ремонт ,переделка.8(903)286-88-58
|
|
    |
 |
Vadim67
Зарегистрирован: Сб 21 Ноябрь 2015, 22:14
Сообщения: 9
Регион: Москва
|
Добавлено:
Вс 22 Ноябрь 2015, 23:46
|
  |
У меня с фундаментом проблем вроде быть не должно. Залита плита толщиной 30 см, 4 ряда арматуры накрест, в месте установки печи дополнительно арматурой усиливали.
Почитаю по кирпичу. Сейчас выбирали исключительно по цвету и по цене. Я так понимаю кировский 60 руб, а лоде 80-100. Понятно что денег будет стоить все это. Вот я и хотел разобраться где реально можно ужаться, но конечно не в ущерб качеству.
К витебскому претензии у меня. В другом доме две печки, оба оголовка трубы развалились буквально за 2-3 года. Кирпич буквально в труху рассыпался. Перекладывали оголовки из какого-то облицовочного полнотелого. Пока стоят.
|
|
|
|
  |
 |
Vadim67
Зарегистрирован: Сб 21 Ноябрь 2015, 22:14
Сообщения: 9
Регион: Москва
|
Добавлено:
Вс 22 Ноябрь 2015, 23:50
|
  |
| смирнов иван писал(а): |
| Кстати, указанный в Вашем сообщении телефон действителен? |
Нет!!!! Извините! Ошибся я. Не 903, а 916. Со спам защитой перемудрил.
903 это на другом номере, перепутал.
|
|
|
|
  |
 |
Vadim67
Зарегистрирован: Сб 21 Ноябрь 2015, 22:14
Сообщения: 9
Регион: Москва
|
Добавлено:
Пн 23 Ноябрь 2015, 00:01
|
  |
| смирнов иван писал(а): |
В барбекюшнице, как правило, присутствует плита под казан, пригодная для готовки ( этакий удобно - универсальный вариант), разделочный стол. Может быть коптильня, хлебная камера либо мини- русская печь. Короче, вариантов сколько угодно.
|
Понял. Жена говорит что готовить ничего не будет на веранде. Но это она сейчас так говорит. Есть у меня еще один человек среди предполагаемых пользователей, который может и коптильню одобрить и печь хлебную.
Буду советоваться и думать.
|
|
|
|
  |
 |
Гребенчюк Андрей

Зарегистрирован: Чт 9 Сентябрь 2010, 17:23
Сообщения: 1211
Регион: Ленинградская область
|
Добавлено:
Пн 23 Ноябрь 2015, 00:03
|
  |
| смирнов иван писал(а): |
| Гребенюк Андрей писал(а): |
| Кучу печей стоит на сендвичах и не чего не горят, те же банные или каминные топки, у меня тоже есть печи подключенные к трубе сендвич и стоят уже не первый год. Тем более если с фундаментом нагрузку нельзя большую. А то начинается, можно и так на сендвич ставить со всеми против пожарными соблюдения условий и все будет стоять. А то если так говорить то нельзя это нельзя во обще строительство печей нужно во обще запретить. По поводу кирово чепецкого много по нему нареканий по качеству даже здесь на форуме . Проекты удалил по этому и пропал. |
Сэндвич пожароопасен. Андрей, глупо отрицать, что греется он значительно больше и срок службы ниже. По поводу кировского кирпича. Идеального нет. Даже у lode есть к чему придраться. А за свои деньги киров вне конкуренции. Витебский становится все хуже и хуже. И что за фундамент, если он не способен выдержать вес печи с трубой. Причем. Средний вес печи около 5 тонн из них труба около тонны- полутора. И велика выгода - то. |
Иван не несите чушь ради бога. Видно сразу Ваша компетентность. Если смотреть по Вашим заявкам то во обще нужно все каминные топки и банные запретить напрочь. И кстати такие трубы стоят довольно таки долго. Я не стану тут сейчас спорить как в предыдущей теме, это без полезно.
|
|
|
|
  |
 |
Гребенчюк Андрей

Зарегистрирован: Чт 9 Сентябрь 2010, 17:23
Сообщения: 1211
Регион: Ленинградская область
|
Добавлено:
Пн 23 Ноябрь 2015, 00:10
|
  |
| Vadim67 писал(а): |
У меня с фундаментом проблем вроде быть не должно. Залита плита толщиной 30 см, 4 ряда арматуры накрест, в месте установки печи дополнительно арматурой усиливали.
Почитаю по кирпичу. Сейчас выбирали исключительно по цвету и по цене. Я так понимаю кировский 60 руб, а лоде 80-100. Понятно что денег будет стоить все это. Вот я и хотел разобраться где реально можно ужаться, но конечно не в ущерб качеству.
К витебскому претензии у меня. В другом доме две печки, оба оголовка трубы развалились буквально за 2-3 года. Кирпич буквально в труху рассыпался. Перекладывали оголовки из какого-то облицовочного полнотелого. Пока стоят. |
Если внутреннюю часть печи сделать из шамотного кирпича, облицовки сделать красным не так уж и много его и нужно будет. Трубу тут уже без разницы чем ставить кирпичом, сендвич или то же керамический. Если труба особо не будет видна почему к примеру не с Витебским делать. По поводу трубы что Вы говорили разваливается да совершенно верно при таких условиях погоды он разваливается по этому или его штукатурят или накрывают коробом.
|
|
|
|
  |
 |
Михаил Фадеев

Зарегистрирован: Пн 13 Февраль 2012, 15:39
Сообщения: 570
Регион: Москва
|
Добавлено:
Пн 23 Ноябрь 2015, 00:22
|
  |
| Vadim67 писал(а): |
У меня с фундаментом проблем вроде быть не должно. Залита плита толщиной 30 см, 4 ряда арматуры накрест, в месте установки печи дополнительно арматурой усиливали.
Почитаю по кирпичу. Сейчас выбирали исключительно по цвету и по цене. Я так понимаю кировский 60 руб, а лоде 80-100. Понятно что денег будет стоить все это. Вот я и хотел разобраться где реально можно ужаться, но конечно не в ущерб качеству.
К витебскому претензии у меня. В другом доме две печки, оба оголовка трубы развалились буквально за 2-3 года. Кирпич буквально в труху рассыпался. Перекладывали оголовки из какого-то облицовочного полнотелого. Пока стоят. |
Оголовки нельзя класть ни из витебского, ни из кировского. Лоде на крышах ещё стоит, а вообще надо класть из облицовочного, можно и щелевого, кирпича. Все про это знают, но те, кто ставили там трубы, видимо, не знали. Долго и с неизменным внешним видом будет стоять сэндвич. Насчёт его пожароопасности: правильно построенная печь и правильно собранный сэндвич, причём не обязательно дорогой, Везувий, например, простоят долго. Один мой бывший заказчик - пожарный из Мособлспаса. Можно у него спросить, сколько раз он выезжал из-за сэндвичей. К тому же у сэндвича круглое сечение - идеальное для дымохода. И в вашем проёме 55х55 он отлично проходит со всеми ППР. А вот кирпичная, даже пятерик со своим самым неудачным прямоугольным сечением, не очень-то помещается с учётом ППР.
|
_________________ 8 903 112 79 73;
|
|
    |
 |
смирнов иван
Зарегистрирован: Чт 16 Январь 2014, 13:06
Сообщения: 1171
Регион: москва
|
Добавлено:
Пн 23 Ноябрь 2015, 06:56
|
  |
| Гребенюк Андрей писал(а): |
| смирнов иван писал(а): |
| Гребенюк Андрей писал(а): |
| Кучу печей стоит на сендвичах и не чего не горят, те же банные или каминные топки, у меня тоже есть печи подключенные к трубе сендвич и стоят уже не первый год. Тем более если с фундаментом нагрузку нельзя большую. А то начинается, можно и так на сендвич ставить со всеми против пожарными соблюдения условий и все будет стоять. А то если так говорить то нельзя это нельзя во обще строительство печей нужно во обще запретить. По поводу кирово чепецкого много по нему нареканий по качеству даже здесь на форуме . Проекты удалил по этому и пропал. |
Сэндвич пожароопасен. Андрей, глупо отрицать, что греется он значительно больше и срок службы ниже. По поводу кировского кирпича. Идеального нет. Даже у lode есть к чему придраться. А за свои деньги киров вне конкуренции. Витебский становится все хуже и хуже. И что за фундамент, если он не способен выдержать вес печи с трубой. Причем. Средний вес печи около 5 тонн из них труба около тонны- полутора. И велика выгода - то. |
Иван не несите чушь ради бога. Видно сразу Ваша компетентность. Если смотреть по Вашим заявкам то во обще нужно все каминные топки и банные запретить напрочь. И кстати такие трубы стоят довольно таки долго. Я не стану тут сейчас спорить как в предыдущей теме, это без полезно. |
По поводу компетентности. " Железки" я действительно не жалую, ибо они имеют, как и все на свете, свои недостатки. Об этом говорилось много и не только здесь. Единственное преимущество готовых топок и буржуек - относительно быстрый монтаж. Быстрый нагрев, но... И быстро остынет.. Сколько раз обсуждалось- надоело уже. Если кто- то, в силу каких- то соображений готов с этими недостатками мириться, это его выбор. Со всеми вытекающими.
|
_________________ Камины , печи , барбекю , русские печи , ремонт ,переделка.8(903)286-88-58
|
|
    |
 |
|
|
|
Следующая тема
Предыдущая тема
Вы не можете начинать темы Вы не можете отвечать на сообщения Вы не можете редактировать свои сообщения Вы не можете удалять свои сообщения Вы не можете голосовать в опросах Вы не можете добавлять приложения в этом форуме Вы можете скачивать файлы в этом форуме
|
|