 |
|
 |
| Автор |
Сообщение
|
Вогнистый Владимир

Зарегистрирован: Сб 7 Апрель 2012, 16:13
Сообщения: 811
Регион: Мариуполь, Украина
|
Добавлено:
Сб 26 Октябрь 2013, 18:17
|
  |
А мне кажеться Солина В. ИМХО.
|
_________________ Печь - это душа дома!!!
|
|
    |
 |
alvyd1
Зарегистрирован: Вт 30 Апрель 2013, 22:00
Сообщения: 10
Регион: Лаздияй
|
Добавлено:
Вс 27 Октябрь 2013, 00:09
|
  |
| Вогнистый Владимир писал(а): |
| А мне кажеться Солина В. ИМХО. |
Могу ли я понимать, что надо смотреть (искать) у Солина В. ?
|
|
|
|
  |
 |
_Юрий_
Зарегистрирован: Вс 24 Ноябрь 2013, 17:26
Сообщения: 6
Регион: Красноярск
|
Добавлено:
Вс 24 Ноябрь 2013, 17:32
|
  |
Извините, кончно на форуме всё это есть, но ...
Тут на скорую руку "сляпал" проект, чтобы познакомиться программой, вот и решил используя его уточнить:
Если убрать перегородки, отмеченные красными стрелками, то уже будет колпаковый щиток? Или я ошибаюсь?
|
| Описание: |
|
| Размер файла: |
29.11 КБ |
| Просмотров: |
1107 раз(а) |

|
|
|
  |
 |
tuomob

Зарегистрирован: Пн 26 Сентябрь 2011, 16:45
Сообщения: 2362
Регион: Тула
|
Добавлено:
Вс 24 Ноябрь 2013, 18:09
|
  |
| _Юрий_ писал(а): |
Если убрать перегородки, отмеченные красными стрелками, то уже будет колпаковый щиток? Или я ошибаюсь?  |
Да, колпаковый щиток.
|
_________________ С Уважением! Юрий. Тула.
ВК https://vk.com/tuomob
За проектами в личку обращайтесь.
|
|
  |
 |
_Юрий_
Зарегистрирован: Вс 24 Ноябрь 2013, 17:26
Сообщения: 6
Регион: Красноярск
|
Добавлено:
Вс 24 Ноябрь 2013, 18:15
|
  |
Тогда еще один вопрос
Для котла (например, каракан) какой лучше?
Тут писали, что колпаковый быстрее прогревается, тогда должно быть и тяга тогда у него сильнее? И есть ли совместить оба типа, например внизу колпак а вверху каналы оставить?
|
|
|
|
  |
 |
tuomob

Зарегистрирован: Пн 26 Сентябрь 2011, 16:45
Сообщения: 2362
Регион: Тула
|
Добавлено:
Вс 24 Ноябрь 2013, 20:13
|
  |
| _Юрий_ писал(а): |
Тогда еще один вопрос
Для котла (например, каракан) какой лучше?
Тут писали, что колпаковый быстрее прогревается, тогда должно быть и тяга тогда у него сильнее? И есть ли совместить оба типа, например внизу колпак а вверху каналы оставить? |
Совет - разворачивай вопрос под конкретную, личную ситуацию.
Зачем, почему, план дома, задачи, основное ли отопление или есть газ.....
Абстрактные рассуждения о достоинствах и недостатках не интересны.
|
_________________ С Уважением! Юрий. Тула.
ВК https://vk.com/tuomob
За проектами в личку обращайтесь.
|
|
  |
 |
Holopenia
Зарегистрирован: Вт 7 Январь 2014, 14:10
Сообщения: 1
Регион: Минск
|
Добавлено:
Вт 7 Январь 2014, 14:36
|
  |
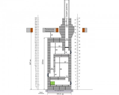
Для дачи (одноэтажный каркасный утепленный дом 6*6, предполагаются временные наезды в зимнее время с одной - двумя ночевками) планирую отопление в виде чугунной буржуйки в паре с кирпичным щитком. Предварительно печка Kratki (Польша) Koza К6. Мощность 9 - 11 квт. Щиток понравился, тот что на картинке (автору спасибо и думаю он будет не против).
Нужен совет по поводу высоты подключения буржуйки к щитку. У данной модели центр выхлопа на высоте 500 мм при диаметре 150 мм. Т.е. надо сместить место подключения чуть больше чем на 200 мм верх, или на три ряда кладки. Что лучше: просто дать от фундамента дополнительно три ряда сплошной кладки (поднять весь щиток вверх) или добавить три ряда на уровне 5 ряда. Хотя думаю возможны и другие варианты, например поднять весь щиток на шанцы.
Второй вопрос, связанный с первым: если подключение печки к щитку сделать симметрично относительно ширины щитка, не повлияет ли это на работу, в частности равномерность прогрева нижней части щитка. Может надо как то хитро изменить конструкцию нижней части щитка.
Такая постановка вопроса актуальна для многих, так как все рассмотренные в этой теме щитки предполагают подключение низкой кирпичной плиты, а у современных буржуек и печей - каминов он значительно выше.
Спасибо
|
| Описание: |
|
| Размер файла: |
22.19 КБ |
| Просмотров: |
1933 раз(а) |

|
|
|
  |
 |
jannifer
Зарегистрирован: Вт 8 Июль 2014, 15:38
Сообщения: 4
Регион: voronezh
|
Добавлено:
Ср 9 Июль 2014, 08:55
|
  |
Прочитала всю тему и совсем запуталась с тем на каком щитке остановить выбор....(((
Нужен щиток к печи Гуча лава (Guca lava) для отопления 40-метрового дома из двух комнат. Щиток - стена между двух комнат. Для постоянного проживания, примерно на 400 кирпичей. Подключение с широкой лицевой части. Посоветуйте пожалуйста что лучше выбрать из освещенных тут вариантов или еще какой-то вариант.
Спасибо
|
|
|
|
  |
 |
Вогнистый Владимир

Зарегистрирован: Сб 7 Апрель 2012, 16:13
Сообщения: 811
Регион: Мариуполь, Украина
|
Добавлено:
Вт 27 Декабрь 2016, 18:20
|
  |
| Евгений Колчин писал(а): |
| Вогнистый Владимир писал(а): |
| Просто переход на более высокий уровень. |
Теплоотдача печей подобного типа (на ребро) при умеренном нагреве (согласно СП) меньше, чем печей выполненных в полкирпича, примерно, на 40%. Так что, это шаг назад ... |
При умеренном нагреве -двух контурная -даже не прогрееться.
|
_________________ Печь - это душа дома!!!
| Описание: |
|
| Размер файла: |
32.95 КБ |
| Просмотров: |
822 раз(а) |

|
|
|
    |
 |
Евгений Колчин

Зарегистрирован: Чт 3 Октябрь 2002, 06:26
Сообщения: 10146
Регион: Москва
|
Добавлено:
Вт 27 Декабрь 2016, 18:42
|
  |
| Вогнистый Владимир писал(а): |
| Евгений Колчин писал(а): |
| Вогнистый Владимир писал(а): |
| Просто переход на более высокий уровень. |
Теплоотдача печей подобного типа (на ребро) при умеренном нагреве (согласно СП) меньше, чем печей выполненных в полкирпича, примерно, на 40%. Так что, это шаг назад ... |
При умеренном нагреве -двух контурная -даже не прогрееться. |
Ну если Вы не поняли первого утверждения, то работу двухконтурной печи Вы не поймете никогда. Извините...
|
_________________ ************************************
|
|
      |
 |
Вогнистый Владимир

Зарегистрирован: Сб 7 Апрель 2012, 16:13
Сообщения: 811
Регион: Мариуполь, Украина
|
Добавлено:
Вт 27 Декабрь 2016, 18:52
|
  |
Конечно -не пойму. Поэтому и сказал -переходим на новый -уровень.Печь Михаила Рожкова - хороший пример.
|
_________________ Печь - это душа дома!!!
|
|
    |
 |
Вогнистый Владимир

Зарегистрирован: Сб 7 Апрель 2012, 16:13
Сообщения: 811
Регион: Мариуполь, Украина
|
Добавлено:
Вт 27 Декабрь 2016, 19:42
|
  |
| Евгений Колчин писал(а): |
| Обоснуйте, что печь М.Рожкова удачный пример выбора активной массы и объема печи. |
Евгений Викторович -я не теоретик а практик. Так что будующее - Хорошо утепленный дом , тонкостенная система в простенках Топка + каналы / Каналы/ -отапливают как минимум -три а лучше четыре комнаты. и при минимальном затрате дров.
|
_________________ Печь - это душа дома!!!
|
|
    |
 |
Вогнистый Владимир

Зарегистрирован: Сб 7 Апрель 2012, 16:13
Сообщения: 811
Регион: Мариуполь, Украина
|
Добавлено:
Вт 27 Декабрь 2016, 19:47
|
  |
| Дмитрий Галанин писал(а): |
| Евгений Колчин писал(а): |
| Вогнистый Владимир писал(а): |
| Просто переход на более высокий уровень. |
Теплоотдача печей подобного типа (на ребро) при умеренном нагреве (согласно СП) меньше, чем печей выполненных в полкирпича, примерно, на 40%. Так что, это шаг назад ... |
Согласен. Считаю, что стенка щитка тоньше 90-100мм- деньги на ветер. |
Что то я не понял. Насчет -толщины стенки блока. Дмитрий -толщина стенки - ?
|
_________________ Печь - это душа дома!!!
| Описание: |
|
| Размер файла: |
189.25 КБ |
| Просмотров: |
789 раз(а) |

|
| Описание: |
|
| Размер файла: |
335.75 КБ |
| Просмотров: |
797 раз(а) |

|
|
|
    |
 |
Dreamdavids
Зарегистрирован: Сб 29 Октябрь 2011, 07:18
Сообщения: 1105
Регион: Пермь
|
Добавлено:
Вт 27 Декабрь 2016, 21:07
|
  |
Вогнистый Владимир,ничего не имею против против ваших щитков,но для РФ они не прокатят.В Украине не был,но примерно представляю,что для вас это выход.И вместе с Беларусью,возможно,ваше отопление максимум гипокауст.
У нас же с щитком на ребро насмех поднимут и батогом промеж лопаток получишь И правильно сделают.
Про иной уровень это я про другое...
|
_________________ +79222445758 Владимир
|
|
  |
 |
Вогнистый Владимир

Зарегистрирован: Сб 7 Апрель 2012, 16:13
Сообщения: 811
Регион: Мариуполь, Украина
|
Добавлено:
Вт 27 Декабрь 2016, 21:38
|
  |
| Dreamdavids писал(а): |
Вогнистый Владимир,ничего не имею против против ваших щитков,но для РФ они не прокатят.В Украине не был,но примерно представляю,что для вас это выход.И вместе с Беларусью,возможно,ваше отопление максимум гипокауст.
У нас же с щитком на ребро насмех поднимут и батогом промеж лопаток получишь И правильно сделают.
Про иной уровень это я про другое... |
Вам не когда не приходила в голову мысль - Щиток на ребро облицевать в четверть./ 250 на 65 и 65мм. /
|
_________________ Печь - это душа дома!!!
| Описание: |
|
| Размер файла: |
337.75 КБ |
| Просмотров: |
512 раз(а) |

|
|
|
    |
 |
Евгений Колчин

Зарегистрирован: Чт 3 Октябрь 2002, 06:26
Сообщения: 10146
Регион: Москва
|
Добавлено:
Вт 27 Декабрь 2016, 22:21
|
  |
|
      |
 |
Вогнистый Владимир

Зарегистрирован: Сб 7 Апрель 2012, 16:13
Сообщения: 811
Регион: Мариуполь, Украина
|
Добавлено:
Вт 27 Декабрь 2016, 22:40
|
  |
Доси не могу понять .? Крылья в кирпич -рядом со щитком , для чего.?
|
_________________ Печь - это душа дома!!!
|
|
    |
 |
Андрей_Алексеевич

Зарегистрирован: Пн 13 Декабрь 2010, 19:17
Сообщения: 5969
Регион: малая родина Павлова, Скобелева, Циолковского, Уткиных и др.
|
Добавлено:
Вт 27 Декабрь 2016, 23:13
|
  |
| Вогнистый Владимир писал(а): |
| Доси не могу понять .? Крылья в кирпич -рядом со щитком , для чего.? |
Как ты считал, Владимир?
в кирпич - только ППР.
|
_________________ Печник - милостью и промыслом Божиим.
Печное отопление частного дома и т.п., авторское сопровождение проектов, наставничество в т.ч. дистанционное, партнёрство в кладке печей.
89106130763 МТС
andrejka61@mail.ru
andrej.kuzmischev@yandex.ru
|
|
   |
 |
Вогнистый Владимир

Зарегистрирован: Сб 7 Апрель 2012, 16:13
Сообщения: 811
Регион: Мариуполь, Украина
|
Добавлено:
Вт 27 Декабрь 2016, 23:13
|
  |
| tuomob писал(а): |
| Евгений Колчин писал(а): |
ТЕСТ для печника:
от чего зависит
"объем печи, позволяющий и в минус 30 топить её один раз в сутки" (авторский текст) |
Посмотрел на Щиток Вогнистого и вспомнил про тему "поездка в Венгрию http://forum.stovemaster.ru/viewtopic.php?t=10379&highlight=" и подумал, что:
Есть старый-испытанный метод "растянуть удовольствие" надолго - Изразцовая Печь.
Внутри большое горячее ядро и медленный съём тепла.
А вариантов-материалов реализации не один (не обязательно классические изразцы, хотя с ними Красивше будет ) |
Ну зачем так прогибаться. Михаил Рожков -же сделал лучше. Опять фото не грузяться.
|
_________________ Печь - это душа дома!!!
|
|
    |
 |
Вогнистый Владимир

Зарегистрирован: Сб 7 Апрель 2012, 16:13
Сообщения: 811
Регион: Мариуполь, Украина
|
Добавлено:
Вт 27 Декабрь 2016, 23:16
|
  |
| Андрей_Алексеевич писал(а): |
| Вогнистый Владимир писал(а): |
| Доси не могу понять .? Крылья в кирпич -рядом со щитком , для чего.? |
Как ты считал, Владимир?
в кирпич - только ППР. |
|
_________________ Печь - это душа дома!!!
| Описание: |
|
| Размер файла: |
25.12 КБ |
| Просмотров: |
841 раз(а) |

|
| Описание: |
|
| Размер файла: |
35.35 КБ |
| Просмотров: |
778 раз(а) |

|
|
|
    |
 |
|
|
|
Следующая тема
Предыдущая тема
Вы не можете начинать темы Вы не можете отвечать на сообщения Вы не можете редактировать свои сообщения Вы не можете удалять свои сообщения Вы не можете голосовать в опросах Вы не можете добавлять приложения в этом форуме Вы можете скачивать файлы в этом форуме
|
|