 |
|
 |
Автор |
Сообщение
|
SergeyO
Зарегистрирован: Пн 8 Июнь 2009, 19:03
Сообщения: 7
|
Добавлено:
Пн 8 Июнь 2009, 20:09
|
  |
Доброго времени суток.
Необходимы сначала советы, а потом, соответственно, и сама печь (печь-камин?).
Отвечу сначала по пунктам.
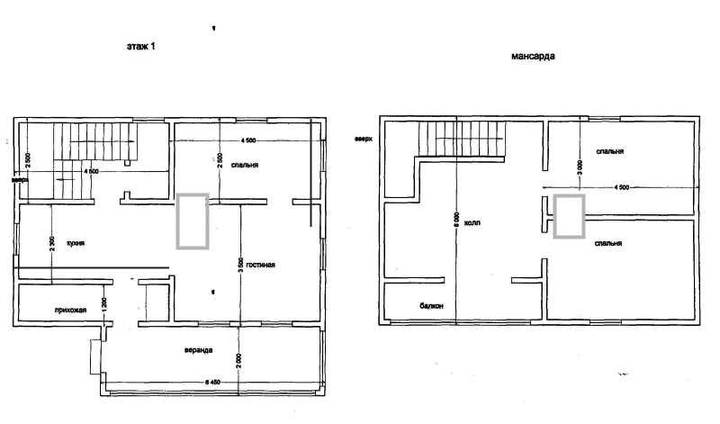
1. Предполагаемый план - прикреплен. Планируется рубленый сруб-пятистенок 6х9м (5-я стена 6м) с мансардным этажом. С остальными перегородками еще не определился: либо брус, либо вагонка с утеплителем. Кровлю планирую тоже утеплять.
2. первый этаж - 3м, второй: стены - 1,5м, в коньке - 3,5м (5-я стена соответственно 6,5 м).
3. Назначение печи - варочно-отопительная. Отопление основное, для постоянного проживания (зимой 2-й этаж - дети наездами, первый постоянно).
4. Вентиляция естественная... наверное. Собственно обустройство отдельной вентиляции не предполагается.
5. Предполагаемое месторасположение указано на плане. Из мечтаний: хотелось бы русскую печь со встроенной плитой (со стороны кухни) и небольшим угловым камином со стороны гостиной. Фото примерно такой печи видел на каком-то сайте, но, к сожалению, не сохранил адреса, а сейчас не нашел, но, думаю, принцип понятен. *Из мечтаний* - потому что возможно итоговая стоимость меня убъет и придется искать что-то попроще .
6. Фундамента пока нет. На данный момент занимаюсь разбором старого дома, на месте которого и планируется возведение нового. Надеюсь в течение месяца-полутора закончу. Под домом планируется ленточный фундамент под пятью стенами (нарисованная веранда - в далекой перспективе, под нее сделают только вынос на столбчатом фундаменте). Фундамент старого здания использовать не представляется возможным из-за его ветхости. В сносимом доме стоит разрушающаяся печка с плитой, встроенным котлом и разводкой на чугунные батареи. Система разморожена и ее придется демонтировать. Старый печной фундамент, боюсь, использовать тоже не удастся.
7. Место - район Малоярославца.
Теперь из насущных вопросов.
1. Фундамент. Как видно из плана, печь планируется встраивать в 5-ю стену. На форуме пишут, что фундаменты печи и дома лучше не связывать. А как же их не связывать, ежели они пересекаются? И вообще, какой д.б. фундамент (размеры, высота на которую выводить и т.д.). И вообще оптимальный размер печи для такого дома.
2. Можно ли (и нужно ли) делать разводку батарей, в том числе и на второй этаж, или можно обойтись печью, м.б. с надстройкой на 2-м этаже?
3. На каком этапе строительства дома можно возводить печь? В этом году планируется установка сруба под временную (рубероидную) крышу и настил половых и потолочных лаг. Соответственно, если на этом этапе возможна кладка печи, то что д.б. отстроено (черновые-чистовые полы, м.б. перегородки и т.д.)?
4. Ну и, конечно, *цена вопроса*, хотя бы ориентировочная.
Буду рад услышать все возможные мнения и варианты.
Спасибо.
С уважением, Сергей.
|
Описание: |
|
Размер файла: |
126.98 КБ |
Просмотров: |
1046 раз(а) |

|
|
|
  |
 |
Сергей(Михалыч)

Зарегистрирован: Пт 5 Май 2006, 08:15
Сообщения: 70
Регион: Самара
|
Добавлено:
Вт 9 Июнь 2009, 07:18
|
  |
Печь я бы немного сдвинул в сторону спальни и одной стеной обогревал спальню на 1 этаже. Нужно предусмотреть отопление 2 этажа от той же печки например тепловой щиток. Сам планирую поставить себе новый дом 6*9 два этажа но хочется еще и теплый клозет а если проведут газ то и место под котел.
|
|
|
  |
 |
SergeyO
Зарегистрирован: Пн 8 Июнь 2009, 19:03
Сообщения: 7
|
Добавлено:
Вт 9 Июнь 2009, 08:37
|
  |
Сергей(Михалыч) писал(а): |
Печь я бы немного сдвинул в сторону спальни и одной стеной обогревал спальню на 1 этаже. Нужно предусмотреть отопление 2 этажа от той же печки например тепловой щиток. Сам планирую поставить себе новый дом 6*9 два этажа но хочется еще и теплый клозет а если проведут газ то и место под котел. |
Это так и планировалось - рисунок не догма . Просто хотел этот вопрос уже конкретно с мастером обсудить. Ибо там какие-то нормы есть отстояния от стенок и м.б. какие-то еще нюансы.
Отопление 2-го этажа было бы неплохо, просто я не очень представляю конструктивное решение и цену вопроса.
Теплый *клозет* - помещение под лестницей, тоже рядом с печкой, но он планируется зимний и выносной (или био) ибо во-первых грунтовые воды, особенно весной, высоко и зальют нафиг все эти септики, а во-вторых (и во-первых тоже) септик для меня дорого.
А прокладкой газа уже больше 10 лет *кормят* пол деревни, а в связи с кризисом разговоры вообще заглохли. Хотя длинная прихожая - с перспективой на отгородку помещения под газ.
|
|
|
  |
 |
Сергей(Михалыч)

Зарегистрирован: Пт 5 Май 2006, 08:15
Сообщения: 70
Регион: Самара
|
Добавлено:
Вт 9 Июнь 2009, 14:41
|
  |
|
  |
 |
SergeyO
Зарегистрирован: Пн 8 Июнь 2009, 19:03
Сообщения: 7
|
Добавлено:
Вт 9 Июнь 2009, 20:31
|
  |
Сергей(Михалыч)
Сергей, спасибо за ссылки.
Форум я, естественно, листал еще до регистрации, дело не в этом.
Как говориться *беда коль пироги начнет печи сапожник* etc...
Я конечно могу бросить все и засесть за литературу, но во-первых на это просто нет времени, а во-вторых будет ли от этого толк?
Нет, как любителю мне, конечно, было бы интересно сложить печь при этом соблюдая все нормы и правила, но лучше если это сделают профессионалы, а сам я поэкспериментирую потом на летней печке, чтобы скотине было на чем корм готовить. А в поле (ибо я полевой геолог) печки для выпечки хлеба мы вообще делаем из бочек, конструкция довольно простая .
А если серьезно, то ища по просторам инета я увидел неисчислимое множество фото, чертежей и рисунков печей от которых голова может пойти кругом и в которых надо разбираться и разбираться. А посты завсегдатаев этого форума оставляют впечатление профессионализма и доброжелательности, поэтому и решил сюда обратиться.
Что мне хочется я, в общих чертах, представляю.
В обоих домах моих дедов-бабушек (Царство им Небесное) были русские печи различной (насколько я сейчас понимаю достаточно сложной) конструкции. Еда приготовленная в горниле ни с чем не сравниться. Поэтому хотелось бы его иметь.
И там, и там присутствовали варочные печи на 2-3 конфорки и это правильно.
И там, и там дома обогревались печью, что, собственно, и нужно.
А уж обогрев второго этажа и камин в углу гостиной - это *современные* пожелания без которых, если они сильно удорожают или осложняют проект, теоретически можно и обойтись.
Печь д.б. функциональна, без изысков и наворотов - добротная, рабочая, деревенская печь.
Соответственно мне и хотелось бы услышать от разбирающихся людей - какая (какие?) конструкция для этого подходит, ее размер в соответствии с отапливаемым помещением, какой фундамент, ибо его заливка уже не за горами, ну, первичные вопросы обозначены в первом посте. Ибо единственный печник, которого я нашел рядом готов делать все и дешево, но его квалификация вызывает у меня сомнение.
Еще раз спасибо.
С уважением и ожиданием.
Сергей.
|
|
|
  |
 |
Евгений Колчин

Зарегистрирован: Чт 3 Октябрь 2002, 06:26
Сообщения: 10143
Регион: Москва
|
Добавлено:
Вт 9 Июнь 2009, 22:24
|
  |
в вашем варианте я бы предложил печь в переход между комнатами в виде пергородки для зонального деления
по осям печь первого этажа становиться для транзита печи второго, что вполне хватит, как основное отопление
вспомогательно можно использовать в холле второго этажа и в непроходных первого
с камином скорее всего придется распрощаться, поскольку проем у вас всего 2.3 метра, что маловато по ППБ от портала до сгораемых конструкций
фундамент в плане должен быть шире печи на 15 см в каждую сторону и недоходить до уровня чистого пола на 15-20 см
расчетная нагрузка по печи на два этажа (по проекту)
фундамент с основным не связывать
печь можно возводить после установки основной коробки дома под рубероид имея в наличие кое какой пиломатериал для чернового пола и строительсва лесов
|
_________________ ************************************
Описание: |
отопление двухэтажной печью |
|
Размер файла: |
39.42 КБ |
Просмотров: |
997 раз(а) |

|
|
|
      |
 |
SergeyO
Зарегистрирован: Пн 8 Июнь 2009, 19:03
Сообщения: 7
|
Добавлено:
Вт 9 Июнь 2009, 23:42
|
  |
Евгений Колчин писал(а): |
в вашем варианте я бы предложил печь в переход между комнатами в виде пергородки для зонального деления... |
Правильно ли я понимаю, что в этом варианте печь *уходит* из кухни? А как же готовить? Старая печь, особенно в зимнее время, для готовки использовалась постоянно
Евгений Колчин писал(а): |
с камином скорее всего придется распрощаться, поскольку проем у вас всего 2.3 метра, что маловато по ППБ от портала до сгораемых конструкций |
Надо - так надо, но нельзя ли в таком случае использовать готовые небольшие камины (типа этого http://www.webkamin.ru/catalog/40/1194/, не сочтите за рекламу, первое что попалось) с выводом их трубы через печную трубу?
Евгений Колчин писал(а): |
фундамент в плане должен быть шире печи на 15 см в каждую сторону... |
Это понял. Определиться бы с размерами печи
Евгений Колчин писал(а): |
фундамент с основным не связывать |
Вот это я как раз не очень понимаю. Если фундамент печи пересекает фундамент дома, то арматуру можно не пропускать, но наложение фундаментов все равно будет. Либо нужно прерывать ленточный фундамент под стеной? В принципе это возможно, надо только дополнительные ростверки на концах фундамента сделать...
Евгений Колчин писал(а): |
печь можно возводить после установки основной коробки дома под рубероид имея в наличие кое какой пиломатериал для чернового пола и строительсва лесов |
Ну, это не проблема, любые предварительные строительные работы могут быть сделаны.
Спасибо за ответ
|
|
|
  |
 |
Евгений Колчин

Зарегистрирован: Чт 3 Октябрь 2002, 06:26
Сообщения: 10143
Регион: Москва
|
Добавлено:
Ср 10 Июнь 2009, 07:12
|
  |
Сергей, я предложил один из вариантов установки очага для максимально комфортного прогрева всего дома. Компановку и функциональность уже должен определять исполнитель, поскольку каждый делает конструктив печи по своему, например, мы по системе Кузнецова, а кто то будет ставить вам или "шведку" или "противоток.
Насколько вы будете эффективно использовать настил для приготовления пищи не знаю, но практически на нем можно готовить только в момент активного горения в топке, а это в среднем 1.5 час в сутки. Наиболее рационально иметь газовую плиту на балоне, а в печи предусмотреть горнило (хлебную камеру). Надеюсь летом вы не готовите на печи?, а это почти 1/2 года.
Наверняка есть в доме и электричество, которое можно использовать на подогрев воды и частичное отопление дома.
Указанный вами камин можно поставить к стенке печи со стороны зала, предусмотрев в печи отверстие для подключения, даже уже в готовом доме. Если не передумаете..
Конструкцию фундамент считаю должны определять и расчитывать строители, в зависимости от нагрузок и грунтов. Что это будет, лента или монолит, ростверк на столбах или еще что, не знаю. Если сейчас заняться полемикой о его конструктиве, все одно не придем к решению. Мнения все разделяться.
Одно могу сказать.
Если это даже и капитальная стена, которая играет роль стяжки сруба (стен), то лучше все же разорвать ленту и сделать две дополнительные параллельные лаги от переруба, а между собой скрепить их ригелями. Получаем: освобождаем место для независимого фундамента печи, укрепляем нижний венец двумя врубленными стяжками, при этом вверху остается центральная независимая, создаем меньший пролет для половых лаг и получаем дополнительную устойчивость их на прогиб.
|
_________________ ************************************
|
|
      |
 |
SergeyO
Зарегистрирован: Пн 8 Июнь 2009, 19:03
Сообщения: 7
|
Добавлено:
Чт 18 Июнь 2009, 19:49
|
  |
Евгений Колчин писал(а): |
Компановку и функциональность уже должен определять исполнитель... |
С исполнителем-то как раз пока проблема - насколько я понимаю, все "в поле". А с размером печи (соответственно, с размером фундамента) надо определяться...
Евгений Колчин писал(а): |
Насколько вы будете эффективно использовать настил для приготовления пищи... |
Когда при доме есть хозяйство, настил при горении используется постоянно, ибо каждый день те же полтора часа жечь баллонный газ чтобы кормить скот и греть ему воду несколько затратно.
А горнило естественно нужно.
Евгений Колчин писал(а): |
Наверняка есть в доме и электричество, которое можно использовать на подогрев воды и частичное отопление дома. |
То есть Вы считаете, что одной печью такое здание отопить не получиться и нужны батареи?
Евгений Колчин писал(а): |
Указанный вами камин можно поставить к стенке печи со стороны зала, предусмотрев в печи отверстие для подключения, даже уже в готовом доме. Если не передумаете.. |
Ну, это - да Спасибо.
Евгений Колчин писал(а): |
Конструкцию фундамент считаю должны определять и расчитывать строители... |
Так-то оно так, но, полагаю, что фундамент будет лить местная бригада. С бригадиром, конечно, можно посоветоваться, но в общем: что скажешь, то и сделают.
А за варианты спасибо - пожалуй я одним воспользуюсь.
И вообще - большое спасибо за конструктивный ответ
P.S. Извиняюсь за запоздалый ответ - мотаюсь.
P.P.S. Я могу употреблять не совсем правильную терминологию, тоже прошу извинить...
|
Последний раз редактировалось: SergeyO (Чт 18 Июнь 2009, 19:53), всего редактировалось 1 раз |
|
  |
 |
prot.anatolij

Зарегистрирован: Вс 21 Июнь 2009, 10:37
Сообщения: 39
Регион: Россия
|
Добавлено:
Вс 21 Июнь 2009, 10:57
|
  |
По расположению поддерживаю позицию Сергея Михайловича - сдвинуть в сторону спальни, чтобы в кухне осталась только плита, а на втором этаже щиток в виде камина, т.е. под подом камина, его задняя стенка и колонны портала представляют собой дымоходы (колпак). При необходимости быстро прогреть помещение можно протапливать камин, либо пускать дым напрямую без прогрева второго этажа.
Анатолий Евгеньевич.
|
|
|
    |
 |
SergeyO
Зарегистрирован: Пн 8 Июнь 2009, 19:03
Сообщения: 7
|
Добавлено:
Вт 30 Июнь 2009, 22:44
|
  |
prot.anatolij писал(а): |
По расположению поддерживаю позицию Сергея Михайловича - сдвинуть в сторону спальни, чтобы в кухне осталась только плита, а на втором этаже щиток в виде камина, т.е. под подом камина, его задняя стенка и колонны портала представляют собой дымоходы (колпак). При необходимости быстро прогреть помещение можно протапливать камин, либо пускать дым напрямую без прогрева второго этажа.
Анатолий Евгеньевич. |
Спасибо
Расположение - так и планируется. Про второй этаж - я согласен. Принцип мне в целом понятен. Вопрос, собственно, в названии темы...
Мне нужно определиться с размером фундамента под печь исходя из отапливаемого объема, найти конкретного исполнителя и решить с ценой и временем. Если есть предложения - в личку.
|
|
|
  |
 |
SergeyO
Зарегистрирован: Пн 8 Июнь 2009, 19:03
Сообщения: 7
|
Добавлено:
Пн 3 Август 2009, 22:32
|
  |
*Тяжело вздохнув*
Может быть я что-то не так делаю... Но так получилось, что ответы на вопросы я не получил...
В общем, старый дом я наконец-то разобрал. Через неделю-другую начнут делать фундамент под новый. Есть несколько вопросов.
Если взять за основу первый рисунок, любезно предложенный Евгением Колчиным , то:
1. Внутренний размер "колодца" для фундамента под печь "с запасом" в интервале 150*150 - 200*200 хватит для возведения печи достаточной для обогрева планируемого дома? К каким размерам ближе? Может быть нужен несимметричный размер?
2. Нижнее бревно 5-й стены весьма желательно не прерывать, а то недолго сруб "дыней" получить. Возможно ли его *встраивание* в печь? Может быть существуют какие-то другие конструкции?
Рубить сруб из летнего леса не хочется, посему рубиться он будет зимой. Соответственно, строительство печи откладывается на весну. Буду рад рассмотреть все предложения, но с фундаментом-то надо сейчас определиться. А так - Сергей (Михалыч) и prot.anatolij логично обозначили, что нужно....
Может быть я просто не туда стучусь? Тогда буду рад ссылкам на другие ресурсы для поиска совета и печника.
Спасибо.
Сергей (Львович)
|
|
|
  |
 |
Андрей Ищенко
Проектировщик
Зарегистрирован: Вт 7 Февраль 2006, 10:08
Сообщения: 2946
Регион: Пенза
|
Добавлено:
Вт 4 Август 2009, 15:45
|
  |
SergeyO
Выбираете печника, тут их много, договариваетесь, он вам и спроектирует и смету составит и проконсультирует.
|
_________________ +7 962 974-10-94 Viber WhatsApp
+7 962 399-59-39
|
|
     |
 |
|
|
Следующая тема
Предыдущая тема
Вы не можете начинать темы Вы не можете отвечать на сообщения Вы не можете редактировать свои сообщения Вы не можете удалять свои сообщения Вы не можете голосовать в опросах Вы не можете добавлять приложения в этом форуме Вы можете скачивать файлы в этом форуме
|
|