Некоммерческое партнерство Альянс Печных Дел Мастера
 RSS  • FAQ  •  Поиск  •  Пользователи  •  Группы   •  Регистрация   •  Избранные темы   •  Профиль  •  Войти и проверить личные сообщения  •  Чат  •  Вход





 Помогите выбрать печь для отопления дома Следующая тема
Предыдущая тема
Начать новую темуОтветить на тему
Автор Сообщение
banderas81



Зарегистрирован: Пн 28 Ноябрь 2011, 22:38
Сообщения: 106
Регион: Великий Новгород

СообщениеДобавлено: Пн 28 Ноябрь 2011, 23:34 Ответить с цитатойВернуться к началу

Уважаемые мастера.
Собираемся строится. Дом рубленный для ПМЖ 1.5 этажа в Новгородской области.
Возможно-ли в домах с подобной планировкой сделать печное отопление ?
Проекты не окончательны.
Рассматриваем возможные варианты по оптимизации помещений. Перенос перегородок и т.д. окромя несущих.
Профессионалы помогите спроектировать дом мечты. Не хочется уже в готовом доме пилить перегородки. достраивать фундаменты.



дом 2.jpg
 Описание:
 Размер файла:  98.97 КБ
 Просмотров:  1236 раз(а)

дом 2.jpg



дом1.jpg
 Описание:
 Размер файла:  61.98 КБ
 Просмотров:  956 раз(а)

дом1.jpg



7d07269ea2bae97459b4cd4c580d6bfe.jpg
 Описание:
 Размер файла:  347.14 КБ
 Просмотров:  920 раз(а)

7d07269ea2bae97459b4cd4c580d6bfe.jpg


Посмотреть профильОтправить личное сообщение
Шура



Зарегистрирован: Чт 8 Январь 2009, 20:09
Сообщения: 4171
Регион: Москва - Тамбов

СообщениеДобавлено: Вт 29 Ноябрь 2011, 00:50 Ответить с цитатойВернуться к началу

Все три проекта, рассчитаны на водяное отопление, в каждом проекте есть помещение под котельную(газ или дизель), а нормальную печь, поставить некуда...
Закажите проект, именно под печное отопление.
Пожалуй, в один проект, всё же можно встроить печь-котёл, типа этого: http://www.ekonomka.se/engelska/modell_himmel.html
или этого: http://forum.stovemaster.ru/viewtopic.php?t=5037



п2.jpg
 Описание:
 Размер файла:  87.8 КБ
 Просмотров:  948 раз(а)

п2.jpg


Посмотреть профильОтправить личное сообщениеОтправить e-mail
banderas81



Зарегистрирован: Пн 28 Ноябрь 2011, 22:38
Сообщения: 106
Регион: Великий Новгород

СообщениеДобавлено: Вт 29 Ноябрь 2011, 11:52 Ответить с цитатойВернуться к началу

В "котельной! будет помещение для обеспечения дома водой.
Мы и спрашиваем реально переделать эти помещения для отопления печью.


Последний раз редактировалось: banderas81 (Вт 29 Ноябрь 2011, 12:41), всего редактировалось 1 раз
Посмотреть профильОтправить личное сообщение
Андрей_Алексеевич



Зарегистрирован: Пн 13 Декабрь 2010, 19:17
Сообщения: 5969
Регион: малая родина Павлова, Скобелева, Циолковского, Уткиных и др.

СообщениеДобавлено: Вт 29 Ноябрь 2011, 12:19 Ответить с цитатойВернуться к началу

Уважаемый banderas81!
Выбирая-рисуя проект ПМЖ под печное отопление помните главное - к печи должны прилегать ВСЕ жилые и бытовые помещения дома!!! Их количество м.б. до 4-рёх на одном этаже.
Коридоры на улицу (выгороженные дверями), тамбуры, кладовки, террасы к таковым не относятся!

_________________
Печник - милостью и промыслом Божиим.
Печное отопление частного дома и т.п., авторское сопровождение проектов, наставничество в т.ч. дистанционное, партнёрство в кладке печей.
89106130763 МТС
andrejka61@mail.ru
andrej.kuzmischev@yandex.ru
Посмотреть профильОтправить личное сообщениеПозвонить автору
Шура



Зарегистрирован: Чт 8 Январь 2009, 20:09
Сообщения: 4171
Регион: Москва - Тамбов

СообщениеДобавлено: Вт 29 Ноябрь 2011, 13:03 Ответить с цитатойВернуться к началу

banderas81 писал(а):
В "котельной! будет помещение для обеспечения дома водой.
Мы и спрашиваем реально переделать эти помещения для отопления печью.
Переделывать надо не помещения, а проекты...
Посмотреть профильОтправить личное сообщениеОтправить e-mail
Boris759



Зарегистрирован: Ср 9 Февраль 2011, 08:36
Сообщения: 272
Регион: Belarus

СообщениеДобавлено: Вт 29 Ноябрь 2011, 19:11 Ответить с цитатойВернуться к началу

Андрей_Алексеевич писал(а):
Уважаемый banderas81!
Выбирая-рисуя проект ПМЖ под печное отопление помните главное - к печи должны прилегать ВСЕ жилые и бытовые помещения дома!!! Их количество м.б. до 4-рёх на одном этаже.
Коридоры на улицу (выгороженные дверями), тамбуры, кладовки, террасы к таковым не относятся!
согласен тем более что не везде видно где капиталка а где перегородка
Посмотреть профильОтправить личное сообщение
banderas81



Зарегистрирован: Пн 28 Ноябрь 2011, 22:38
Сообщения: 106
Регион: Великий Новгород

СообщениеДобавлено: Вт 29 Ноябрь 2011, 22:00 Ответить с цитатойВернуться к началу

Да, прошу прощения, не правильно сформулировал. Переделывать проекты будем однозначно, так как ничего подходящего не найти Sad(((
Может кто знает где посмотреть проекты в которых предусмотрена печь???
Посмотреть профильОтправить личное сообщение
Шура



Зарегистрирован: Чт 8 Январь 2009, 20:09
Сообщения: 4171
Регион: Москва - Тамбов

СообщениеДобавлено: Вт 29 Ноябрь 2011, 23:24 Ответить с цитатойВернуться к началу

banderas81 писал(а):
Да, прошу прощения, не правильно сформулировал. Переделывать проекты будем однозначно, так как ничего подходящего не найти Sad(((
Может кто знает где посмотреть проекты в которых предусмотрена печь???

Скорее всего, готовых проектов, сейчас уже не найти. Надо заказывать в проектной фирме, обозначив техзадание.
Техзадание, можно предварительно обсудить на форуме.
Для начала, желательно определиться с общей площадью, этажностью и т.п.
Посмотреть профильОтправить личное сообщениеОтправить e-mail
banderas81



Зарегистрирован: Пн 28 Ноябрь 2011, 22:38
Сообщения: 106
Регион: Великий Новгород

СообщениеДобавлено: Ср 30 Ноябрь 2011, 14:00 Ответить с цитатойВернуться к началу

Вот супруга подкорректировала один проект, посмотрите плиз можно в него поставить печь?
Вообще хотим рубленный дом, пятистенок на 1,5 этажа. Чтобы был тамбур обязательно, прихожая, туалет на 1-м этаже, гостиная/столовая/кухня ,+ бойлерная, для обеспечения гор.водой кухни и сан.узла., с/у на втором этаже + 2 минимум комнаты.



проект 2эт.jpg
 Описание:
2 этаж
 Размер файла:  156.26 КБ
 Просмотров:  945 раз(а)

проект  2эт.jpg



проект 1эт.jpg
 Описание:
1 этаж
 Размер файла:  152.85 КБ
 Просмотров:  912 раз(а)

проект  1эт.jpg


Посмотреть профильОтправить личное сообщение
banderas81



Зарегистрирован: Пн 28 Ноябрь 2011, 22:38
Сообщения: 106
Регион: Великий Новгород

СообщениеДобавлено: Ср 7 Декабрь 2011, 23:20 Ответить с цитатойВернуться к началу

подниму тему, какие мысли по последнему варианту?
Посмотреть профильОтправить личное сообщение
Евгений Колчин



Зарегистрирован: Чт 3 Октябрь 2002, 06:26
Сообщения: 10146
Регион: Москва

СообщениеДобавлено: Чт 8 Декабрь 2011, 00:37 Ответить с цитатойВернуться к началу

все правильно
по первому этажу зональное деление печью и транзит на второй этаж в две спальные

_________________
************************************
Посмотреть профильОтправить личное сообщениеОтправить e-mailПосетить сайт автораПозвонить авторуICQ Number
Boris759



Зарегистрирован: Ср 9 Февраль 2011, 08:36
Сообщения: 272
Регион: Belarus

СообщениеДобавлено: Чт 8 Декабрь 2011, 08:18 Ответить с цитатойВернуться к началу

banderas81 писал(а):
Вот супруга подкорректировала один проект, посмотрите плиз можно в него поставить печь?
Вообще хотим рубленный дом, пятистенок на 1,5 этажа. Чтобы был тамбур обязательно, прихожая, туалет на 1-м этаже, гостиная/столовая/кухня ,+ бойлерная, для обеспечения гор.водой кухни и сан.узла., с/у на втором этаже + 2 минимум комнаты.

ЕСЛИ ДВЕ ПЕЧИ ТО МОЖНО ОТОПИТЬ ВЕСЬ ДОМ на 2-м этаже щитки от нижних печей



t__2_442.jpg
 Описание:
 Размер файла:  15.87 КБ
 Просмотров:  855 раз(а)

t__2_442.jpg



t__1_186.jpg
 Описание:
 Размер файла:  16.03 КБ
 Просмотров:  812 раз(а)

t__1_186.jpg


Посмотреть профильОтправить личное сообщение
Андрей_Алексеевич



Зарегистрирован: Пн 13 Декабрь 2010, 19:17
Сообщения: 5969
Регион: малая родина Павлова, Скобелева, Циолковского, Уткиных и др.

СообщениеДобавлено: Чт 8 Декабрь 2011, 10:56 Ответить с цитатойВернуться к началу

Посмотрите вот такие: (лестничный марш и тамбур можно разместить в любом помещении)

_________________
Печник - милостью и промыслом Божиим.
Печное отопление частного дома и т.п., авторское сопровождение проектов, наставничество в т.ч. дистанционное, партнёрство в кладке печей.
89106130763 МТС
andrejka61@mail.ru
andrej.kuzmischev@yandex.ru


варианты планировок ПМЖ.JPG
 Описание:
 Размер файла:  27.45 КБ
 Просмотров:  806 раз(а)

варианты планировок ПМЖ.JPG



варианты планировок ПМЖ - 2.JPG
 Описание:
 Размер файла:  73.06 КБ
 Просмотров:  805 раз(а)

варианты планировок ПМЖ - 2.JPG


Посмотреть профильОтправить личное сообщениеПозвонить автору
banderas81



Зарегистрирован: Пн 28 Ноябрь 2011, 22:38
Сообщения: 106
Регион: Великий Новгород

СообщениеДобавлено: Чт 12 Январь 2012, 00:32 Ответить с цитатойВернуться к началу

Что скажут специалисты о таком варианте отопления дома?



doc-3877-ph-gallery-3880-middle.jpg
 Описание:
облицовка для keddy из талькохлорита
 Размер файла:  32.76 КБ
 Просмотров:  794 раз(а)

doc-3877-ph-gallery-3880-middle.jpg


Посмотреть профильОтправить личное сообщение
Андрей_Алексеевич



Зарегистрирован: Пн 13 Декабрь 2010, 19:17
Сообщения: 5969
Регион: малая родина Павлова, Скобелева, Циолковского, Уткиных и др.

СообщениеДобавлено: Чт 12 Январь 2012, 10:18 Ответить с цитатойВернуться к началу

banderas81 писал(а):
Что скажут специалисты о таком варианте отопления дома?


ЗА!!!
В каждую комнату по такому девайсу!!! Smile
"...Вот уж парень будет рад!" (про печника, что будет монтировать, а уж как будут радоваться купцы... Sad )

_________________
Печник - милостью и промыслом Божиим.
Печное отопление частного дома и т.п., авторское сопровождение проектов, наставничество в т.ч. дистанционное, партнёрство в кладке печей.
89106130763 МТС
andrejka61@mail.ru
andrej.kuzmischev@yandex.ru
Посмотреть профильОтправить личное сообщениеПозвонить автору
banderas81



Зарегистрирован: Пн 28 Ноябрь 2011, 22:38
Сообщения: 106
Регион: Великий Новгород

СообщениеДобавлено: Чт 12 Январь 2012, 23:03 Ответить с цитатойВернуться к началу

Мы подумывали о печи фирмы keddy с облицовкой maxette (печка из пемзы, в качестве аккумулятора камень ОЛИВИ), якобы время остывания 15 часов при условии нагрева с максимальной производительностью в течении 4 часов.
Стоимость сего устройства примерно 170 000 рублей без дымохода.


И все что думаете о таком варианте отопления в помощь будут стоять электроконвекторы в удаленных помещениях.

Эта облицовка из талькохлорита и весит 1100 кг. С такой облицовкой keddy будет стоить 170 000-190 000 рублей тоже без дымохода


не подскажите где то на этом форуме читал о волшебной печи-камине сложенной местным мастером, на которую ходит смотреть весь поселок и удивляется что она очень долго отдает тепло. Если кто помнит подскажите дорогу.
Посмотреть профильОтправить личное сообщение
banderas81



Зарегистрирован: Пн 28 Ноябрь 2011, 22:38
Сообщения: 106
Регион: Великий Новгород

СообщениеДобавлено: Чт 12 Январь 2012, 23:10 Ответить с цитатойВернуться к началу

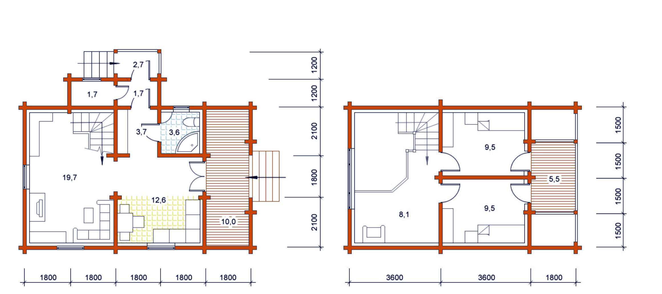
Вот на такой планировке мы решили остановится. Какие варианты печек можете посоветовать.
Нам нравятся печи-камины.



ПРОЕКТ ДОМА.jpg
 Описание:
 Размер файла:  70.37 КБ
 Просмотров:  869 раз(а)

ПРОЕКТ ДОМА.jpg


Посмотреть профильОтправить личное сообщение
Шура



Зарегистрирован: Чт 8 Январь 2009, 20:09
Сообщения: 4171
Регион: Москва - Тамбов

СообщениеДобавлено: Чт 12 Январь 2012, 23:19 Ответить с цитатойВернуться к началу

banderas81 писал(а):
Мы подумывали о печи фирмы keddy с облицовкой maxette (печка из пемзы, в качестве аккумулятора камень ОЛИВИ), якобы время остывания 15 часов при условии нагрева с максимальной производительностью в течении 4 часов.

1100кг, соответствует примерно печи в 280шт кирпичей, а теплоёмкая печь, с таким количеством кирпича, может отопить помещение до 16-20м2, пусть оливин+пемза считается более теплоёмким, то помещение можно будет отопить не более 22-24м2.
Посмотреть профильОтправить личное сообщениеОтправить e-mail
Шура



Зарегистрирован: Чт 8 Январь 2009, 20:09
Сообщения: 4171
Регион: Москва - Тамбов

СообщениеДобавлено: Чт 12 Январь 2012, 23:20 Ответить с цитатойВернуться к началу

banderas81 писал(а):
Вот на такой планировке мы решили остановится. Какие варианты печек можете посоветовать.
Нам нравятся печи-камины.
А размеры то какие?
Посмотреть профильОтправить личное сообщениеОтправить e-mail
banderas81



Зарегистрирован: Пн 28 Ноябрь 2011, 22:38
Сообщения: 106
Регион: Великий Новгород

СообщениеДобавлено: Чт 12 Январь 2012, 23:55 Ответить с цитатойВернуться к началу

ДОМ рубленный 8*9 без веранды



ПРОЕКТ ДОМА.jpg
 Описание:
 Размер файла:  73.97 КБ
 Просмотров:  811 раз(а)

ПРОЕКТ ДОМА.jpg


Посмотреть профильОтправить личное сообщение
Показать сообщения:      
Начать новую темуОтветить на тему


 Перейти:   



Следующая тема
Предыдущая тема
Вы не можете начинать темы
Вы не можете отвечать на сообщения
Вы не можете редактировать свои сообщения
Вы не можете удалять свои сообщения
Вы не можете голосовать в опросах
Вы не можете добавлять приложения в этом форуме
Вы можете скачивать файлы в этом форуме




Проект форум печников "Альянс. Печных Дел Мастера" © 2006-2026