Некоммерческое партнерство Альянс Печных Дел Мастера
 RSS  • FAQ  •  Поиск  •  Пользователи  •  Группы   •  Регистрация   •  Избранные темы   •  Профиль  •  Войти и проверить личные сообщения  •  Чат  •  Вход





 Три в одном Следующая тема
Предыдущая тема
Начать новую темуОтветить на тему
Автор Сообщение
Сергей68



Зарегистрирован: Пт 5 Декабрь 2008, 21:49
Сообщения: 855
Регион: Питер

СообщениеДобавлено: Пт 8 Июнь 2012, 11:53 Ответить с цитатойВернуться к началу

Приветствую всех!
Приступили к реализации проекта... который является развитием проекта "два в одном" ( который не завершен... как обычно сапожник без сапог).
Пожелания заказчика:
1) Внешний вид и функционал по обогреву как у стандартной каминной кассеты ( т.е. конвекция и обогрев соседних помещений оной)
2) Щиток для обогрева соседней комнаты
3) Возможность встраивания в объем хлебной камеры.

Ну и коренной 2-х канальный дымоход высотой 12,8 метра в довесок.
Общий объем 2650 шт. кирпича.

Идея конечно же взята отсюда
http://www.stovemaster.com/html_en/articles_3.html

_________________
8-921-743-33-53


DSC_1662.JPG
 Описание:
Место расположения
 Размер файла:  352.65 КБ
 Просмотров:  871 раз(а)

DSC_1662.JPG



Рисунок 1.jpg
 Описание:
Отрисовка
 Размер файла:  232.63 КБ
 Просмотров:  853 раз(а)

Рисунок 1.jpg



6370-46.jpg
 Описание:
Топка камина Invicta Призматик 700
 Размер файла:  12.3 КБ
 Просмотров:  893 раз(а)

6370-46.jpg


Посмотреть профильОтправить личное сообщениеОтправить e-mailПосетить сайт автора
Сергей68



Зарегистрирован: Пт 5 Декабрь 2008, 21:49
Сообщения: 855
Регион: Питер

СообщениеДобавлено: Пт 8 Июнь 2012, 12:00 Ответить с цитатойВернуться к началу

К теме о переноске кирпича чем и как ... я придерживаюсь мнения , что лучшая приспособа - это 2-ва гастарбайтера.

_________________
8-921-743-33-53


DSC_1671.JPG
 Описание:
Это на 1-й этаж
 Размер файла:  125.61 КБ
 Просмотров:  866 раз(а)

DSC_1671.JPG



DSC_1674.JPG
 Описание:
Кирпич приготовленный для подачи на 2-й и3-й этажи
 Размер файла:  126.09 КБ
 Просмотров:  889 раз(а)

DSC_1674.JPG



DSC_1672.JPG
 Описание:
На помпейскую печь удалось найти клиновой шамот, УРА...
 Размер файла:  99.88 КБ
 Просмотров:  850 раз(а)

DSC_1672.JPG


Посмотреть профильОтправить личное сообщениеОтправить e-mailПосетить сайт автора
Сергей68



Зарегистрирован: Пт 5 Декабрь 2008, 21:49
Сообщения: 855
Регион: Питер

СообщениеДобавлено: Пт 8 Июнь 2012, 12:05 Ответить с цитатойВернуться к началу

Шамотная борода из кирпича ручной формовки

_________________
8-921-743-33-53


DSC_1669 (2).JPG
 Описание:
На контрасте со светлой затиркой... смотреться должно потрясающе
 Размер файла:  262.85 КБ
 Просмотров:  840 раз(а)

DSC_1669 (2).JPG



DSC_1669.JPG
 Описание:
 Размер файла:  127 КБ
 Просмотров:  879 раз(а)

DSC_1669.JPG


Посмотреть профильОтправить личное сообщениеОтправить e-mailПосетить сайт автора
Сергей68



Зарегистрирован: Пт 5 Декабрь 2008, 21:49
Сообщения: 855
Регион: Питер

СообщениеДобавлено: Пт 8 Июнь 2012, 23:39 Ответить с цитатойВернуться к началу

За сегодня угнали поддон кирпича на "подину", открыли вентиляционный колодец, поставили ППР ку по стене, вот пока и все.

_________________
8-921-743-33-53


DSC_1682.JPG
 Описание:
 Размер файла:  111.9 КБ
 Просмотров:  896 раз(а)

DSC_1682.JPG



DSC_1681.JPG
 Описание:
 Размер файла:  408.28 КБ
 Просмотров:  1076 раз(а)

DSC_1681.JPG



DSC_1680.JPG
 Описание:
 Размер файла:  366.8 КБ
 Просмотров:  864 раз(а)

DSC_1680.JPG


Посмотреть профильОтправить личное сообщениеОтправить e-mailПосетить сайт автора
Сергей68



Зарегистрирован: Пт 5 Декабрь 2008, 21:49
Сообщения: 855
Регион: Питер

СообщениеДобавлено: Сб 9 Июнь 2012, 15:44 Ответить с цитатойВернуться к началу

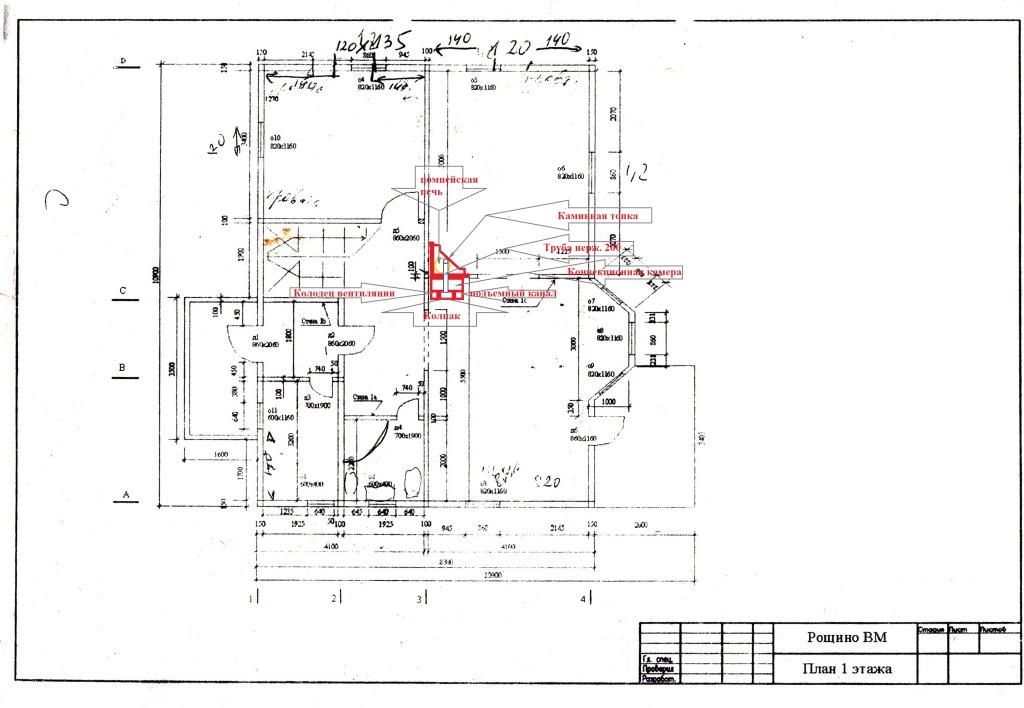
Сегодня утвердили с заказчиком по месту, расположение агрегата по границам подины. Юредически скрепили подписями на плане.
После праздников вперед. Еду на Нарвское водохранилище на рыбалку.
Всех спраздником!

_________________
8-921-743-33-53


Рисунок 1_0001.jpg
 Описание:
 Размер файла:  87.1 КБ
 Просмотров:  1281 раз(а)

Рисунок 1_0001.jpg


Посмотреть профильОтправить личное сообщениеОтправить e-mailПосетить сайт автора
Сергей68



Зарегистрирован: Пт 5 Декабрь 2008, 21:49
Сообщения: 855
Регион: Питер

СообщениеДобавлено: Вт 26 Июнь 2012, 11:44 Ответить с цитатойВернуться к началу

В работе перерыв уже две недели... Заказчику насоветовали поставить вентилятор для конвекции... заказал ... ждемС...

А пока занимаемся тремя каминами в Царском Селе, Екатерининский дворец.
К реставрации на сей раз нас не допустили... будем только ставить трехмерную имитацию пламени в порталы.

Уже изготовили... ставить будем 02,06... результаты выложу.

_________________
8-921-743-33-53


DSC_1500.JPG
 Описание:
 Размер файла:  323.85 КБ
 Просмотров:  872 раз(а)

DSC_1500.JPG



DSC_1507.JPG
 Описание:
Два камина в 3-ей Антикамере
 Размер файла:  190.09 КБ
 Просмотров:  863 раз(а)

DSC_1507.JPG



DSC_1368.JPG
 Описание:
Арабесковый зал
 Размер файла:  371.87 КБ
 Просмотров:  876 раз(а)

DSC_1368.JPG


Посмотреть профильОтправить личное сообщениеОтправить e-mailПосетить сайт автора
Сергей68



Зарегистрирован: Пт 5 Декабрь 2008, 21:49
Сообщения: 855
Регион: Питер

СообщениеДобавлено: Ср 27 Июнь 2012, 11:27 Ответить с цитатойВернуться к началу

Продолжаем работу.

_________________
8-921-743-33-53


DSC_1748.JPG
 Описание:
Завели гофру под эл.кабель
 Размер файла:  142.38 КБ
 Просмотров:  974 раз(а)

DSC_1748.JPG



DSC_1750.JPG
 Описание:
Залились
 Размер файла:  130.8 КБ
 Просмотров:  982 раз(а)

DSC_1750.JPG



DSC_1742.JPG
 Описание:
Прочистные в колодцы щитка
 Размер файла:  392.39 КБ
 Просмотров:  948 раз(а)

DSC_1742.JPG


Посмотреть профильОтправить личное сообщениеОтправить e-mailПосетить сайт автора
Сергей68



Зарегистрирован: Пт 5 Декабрь 2008, 21:49
Сообщения: 855
Регион: Питер

СообщениеДобавлено: Чт 28 Июнь 2012, 10:01 Ответить с цитатойВернуться к началу

Поскольку нужно сразу втыкать вентилятор... пришлось облицовывать кафелем.

_________________
8-921-743-33-53


DSC_1758.JPG
 Описание:
 Размер файла:  138.26 КБ
 Просмотров:  901 раз(а)

DSC_1758.JPG



DSC_1762.JPG
 Описание:
Воткнули вентилятор
 Размер файла:  139.97 КБ
 Просмотров:  998 раз(а)

DSC_1762.JPG



DSC_1765.JPG
 Описание:
Готовая подина под касету
 Размер файла:  137.87 КБ
 Просмотров:  977 раз(а)

DSC_1765.JPG


Посмотреть профильОтправить личное сообщениеОтправить e-mailПосетить сайт автора
Elm



Зарегистрирован: Пн 12 Декабрь 2011, 13:23
Сообщения: 1413
Регион: Первомайск (на Южном Буге)

СообщениеДобавлено: Чт 28 Июнь 2012, 11:51 Ответить с цитатойВернуться к началу

Цитата:
Поскольку нужно сразу втыкать вентилятор

А чего так?
Если иначе втыкнуть никак, то через годика три ремонтники выразят Вам большое человеческое спасибо pleasa
Посмотреть профильОтправить личное сообщениеПосетить сайт автораICQ Number
Сергей68



Зарегистрирован: Пт 5 Декабрь 2008, 21:49
Сообщения: 855
Регион: Питер

СообщениеДобавлено: Чт 28 Июнь 2012, 12:06 Ответить с цитатойВернуться к началу

Elm писал(а):

А чего так?
Если иначе втыкнуть никак, то через годика три ремонтники выразят Вам большое человеческое спасибо pleasa

Монтировать через дырку... не-е-е... это ж гемор, тем более не нами придуманный. Как смогли... мы облегчили жизнь ремонтникам в будущем. на фото пояснения.

_________________
8-921-743-33-53


DSC_1762.JPG
 Описание:
 Размер файла:  258.71 КБ
 Просмотров:  1093 раз(а)

DSC_1762.JPG


Посмотреть профильОтправить личное сообщениеОтправить e-mailПосетить сайт автора
Сергей68



Зарегистрирован: Пт 5 Декабрь 2008, 21:49
Сообщения: 855
Регион: Питер

СообщениеДобавлено: Пт 29 Июнь 2012, 01:12 Ответить с цитатойВернуться к началу

Сегодня пол дня филонили... ездили смотреть прошлую печь, треснул замковый над топочной дверцей. Во вторник бум исправлять ( сразу после Царского села и поедем).
Посему сделали сегодня немного.

_________________
8-921-743-33-53


DSC_1767.JPG
 Описание:
Шамотная борода из кирпича ручной формовки
 Размер файла:  125.21 КБ
 Просмотров:  880 раз(а)

DSC_1767.JPG



DSC_1768.JPG
 Описание:
 Размер файла:  367.74 КБ
 Просмотров:  955 раз(а)

DSC_1768.JPG



DSC_1771.JPG
 Описание:
 Размер файла:  318.25 КБ
 Просмотров:  947 раз(а)

DSC_1771.JPG


Посмотреть профильОтправить личное сообщениеОтправить e-mailПосетить сайт автора
Сергей68



Зарегистрирован: Пт 5 Декабрь 2008, 21:49
Сообщения: 855
Регион: Питер

СообщениеДобавлено: Пт 29 Июнь 2012, 23:18 Ответить с цитатойВернуться к началу

Сегодня продвинулись несколько больше

_________________
8-921-743-33-53


DSC_1778.JPG
 Описание:
 Размер файла:  390.41 КБ
 Просмотров:  895 раз(а)

DSC_1778.JPG



DSC_1775.JPG
 Описание:
В нижней части конвекционной камеры решили сделать дровницу...
 Размер файла:  279.93 КБ
 Просмотров:  870 раз(а)

DSC_1775.JPG



DSC_1776.JPG
 Описание:
 Размер файла:  357.94 КБ
 Просмотров:  970 раз(а)

DSC_1776.JPG


Посмотреть профильОтправить личное сообщениеОтправить e-mailПосетить сайт автора
Сергей68



Зарегистрирован: Пт 5 Декабрь 2008, 21:49
Сообщения: 855
Регион: Питер

СообщениеДобавлено: Пт 29 Июнь 2012, 23:21 Ответить с цитатойВернуться к началу

Пол дня отняла перемычка на каминную полку ( первый напуск)...
Оставили сушиться... завтра с Божьей помощью воткнем.

_________________
8-921-743-33-53


DSC_1786.JPG
 Описание:
 Размер файла:  88.52 КБ
 Просмотров:  953 раз(а)

DSC_1786.JPG



DSC_1785.JPG
 Описание:
 Размер файла:  129.29 КБ
 Просмотров:  941 раз(а)

DSC_1785.JPG


Посмотреть профильОтправить личное сообщениеОтправить e-mailПосетить сайт автора
usanin_n



Зарегистрирован: Вт 26 Май 2009, 17:34
Сообщения: 155
Регион: Украина, Кировоград

СообщениеДобавлено: Вс 1 Июль 2012, 12:16 Ответить с цитатойВернуться к началу

Перемычка на что клеена? какая смесь? Диаметр шпильки?
Посмотреть профильОтправить личное сообщение
Сергей68



Зарегистрирован: Пт 5 Декабрь 2008, 21:49
Сообщения: 855
Регион: Питер

СообщениеДобавлено: Пн 2 Июль 2012, 09:59 Ответить с цитатойВернуться к началу

usanin_n писал(а):
Перемычка на что клеена? какая смесь? Диаметр шпильки?

Да ничего сверхестественного... глинянно-песчанный на голубой глине (красную у нас найти -надо постараться), протертый, с добавлением чуть- чуть цемента.
Шпилька d 8 мм.. Опираться будет на три точки, 2 пятки и верхняя кромка касеты через керамический шнур. Несущая балка будет над ней, из красного печного кирпича. Там шпилька 12 мм.. Фотки будут вечером ( не фотал вчера, зарядка на фотике кончилась).

_________________
8-921-743-33-53
Посмотреть профильОтправить личное сообщениеОтправить e-mailПосетить сайт автора
Сергей68



Зарегистрирован: Пт 5 Декабрь 2008, 21:49
Сообщения: 855
Регион: Питер

СообщениеДобавлено: Пн 2 Июль 2012, 21:29 Ответить с цитатойВернуться к началу

Продолжение

_________________
8-921-743-33-53


DSC_1788.JPG
 Описание:
 Размер файла:  119.07 КБ
 Просмотров:  1041 раз(а)

DSC_1788.JPG



DSC_1792.JPG
 Описание:
 Размер файла:  344.27 КБ
 Просмотров:  862 раз(а)

DSC_1792.JPG



DSC_1791.JPG
 Описание:
 Размер файла:  103.69 КБ
 Просмотров:  812 раз(а)

DSC_1791.JPG


Посмотреть профильОтправить личное сообщениеОтправить e-mailПосетить сайт автора
Безумный Печник



Зарегистрирован: Чт 2 Февраль 2012, 21:43
Сообщения: 3221
Регион: спб

СообщениеДобавлено: Ср 4 Июль 2012, 23:10 Ответить с цитатойВернуться к началу

Вижу подсел на балки на шпильках Радость в основном все из витебского идет че Лоде заказчику не потянуть???? и что этакая за конвекционая камера растолкуй дурню Shocked А Хлебная камера как работать будет по черному или по-белому за фоткай прцес !!!!!!!!!!
Посмотреть профильОтправить личное сообщениеОтправить e-mailПосетить сайт автора
Сергей68



Зарегистрирован: Пт 5 Декабрь 2008, 21:49
Сообщения: 855
Регион: Питер

СообщениеДобавлено: Чт 5 Июль 2012, 01:18 Ответить с цитатойВернуться к началу

Привет-т !! Да тут без балок не проскользнуть... кирпич Победа... Заказчик ЗОЛОТО... просто все под отделку, дык зачем огород городить. Фотать буду обязательно. С утра кое чего выложу ... а щяс спа-а-а-ать.
P.S. Как сам? Чего мастыришь??

_________________
8-921-743-33-53
Посмотреть профильОтправить личное сообщениеОтправить e-mailПосетить сайт автора
Сергей68



Зарегистрирован: Пт 5 Декабрь 2008, 21:49
Сообщения: 855
Регион: Питер

СообщениеДобавлено: Чт 5 Июль 2012, 07:44 Ответить с цитатойВернуться к началу

В продолжение дворцовой темы. Как и планировали... во вторник смонтировались

_________________
8-921-743-33-53


DSC_1817.JPG
 Описание:
В реальности эффект еще правдоподобнее.
 Размер файла:  76.26 КБ
 Просмотров:  864 раз(а)

DSC_1817.JPG



DSC_1800.JPG
 Описание:
Арабесковый
 Размер файла:  152.65 КБ
 Просмотров:  855 раз(а)

DSC_1800.JPG



DSC_1820.JPG
 Описание:
3-яя Антикамера, 2-ва близнеца ( из 4-х)
 Размер файла:  169.76 КБ
 Просмотров:  880 раз(а)

DSC_1820.JPG


Посмотреть профильОтправить личное сообщениеОтправить e-mailПосетить сайт автора
Сергей68



Зарегистрирован: Пт 5 Декабрь 2008, 21:49
Сообщения: 855
Регион: Питер

СообщениеДобавлено: Чт 5 Июль 2012, 07:54 Ответить с цитатойВернуться к началу

По основной теме... начали городушки городить Smile

_________________
8-921-743-33-53


DSC_1838.JPG
 Описание:
 Размер файла:  356.15 КБ
 Просмотров:  891 раз(а)

DSC_1838.JPG



DSC_1836.JPG
 Описание:
 Размер файла:  365.8 КБ
 Просмотров:  891 раз(а)

DSC_1836.JPG



DSC_1837.JPG
 Описание:
 Размер файла:  349.99 КБ
 Просмотров:  1050 раз(а)

DSC_1837.JPG


Посмотреть профильОтправить личное сообщениеОтправить e-mailПосетить сайт автора
Показать сообщения:      
Начать новую темуОтветить на тему


 Перейти:   



Следующая тема
Предыдущая тема
Вы не можете начинать темы
Вы не можете отвечать на сообщения
Вы не можете редактировать свои сообщения
Вы не можете удалять свои сообщения
Вы не можете голосовать в опросах
Вы не можете добавлять приложения в этом форуме
Вы можете скачивать файлы в этом форуме




Проект форум печников "Альянс. Печных Дел Мастера" © 2006-2025