 |
|
 |
| Автор |
Сообщение
|
Alex9111310
Зарегистрирован: Пн 3 Февраль 2014, 17:30
Сообщения: 5
Регион: Нижний Новгород
|
Добавлено:
Пн 3 Февраль 2014, 22:25
|
  |
Кто какую печку посоветует , конечно хотелось бы камино-печь смотрящую в зал , с другой стороны плиту на 1-2 комфорки .
Кто и какую мог бы посоветовать и где в данном случае её поставить , и кто бы мог поспособствовать с порядовкой , так как планирую строить сам . Хотелось бы красивую , над которой можно было бы ну оочень постараться )))
|
| Описание: |
|
| Размер файла: |
208.18 КБ |
| Просмотров: |
790 раз(а) |

|
|
|
   |
 |
Андрей_Алексеевич

Зарегистрирован: Пн 13 Декабрь 2010, 19:17
Сообщения: 5940
Регион: малая родина Павлова, Скобелева, Циолковского, Уткиных и др.
|
Добавлено:
Пн 3 Февраль 2014, 22:43
|
  |
Если ещё не начали заливать фундамент дома - жилой бани, поищите более подходящую планировку для печного отопления и ПМЖ в инете
Возможно, прийдётся "ломать" пятую стену (не "закон мидян и персов"), выводя топку каменки в гостинную. Но объединить подобным образом 2-ве печи на общем фундаменте с общим же дымоходом - сложно, но реально
|
_________________ Печник - милостью и промыслом Божиим.
Печное отопление частного дома и т.п., авторское сопровождение проектов, наставничество в т.ч. дистанционное, партнёрство в кладке печей.
89106130763 МТС
andrejka61@mail.ru
andrej.kuzmischev@yandex.ru
| Описание: |
|
| Размер файла: |
55.45 КБ |
| Просмотров: |
653 раз(а) |

|
|
|
   |
 |
internet_pechnik
Зарегистрирован: Вт 9 Апрель 2013, 19:51
Сообщения: 1892
Регион: belarus
|
Добавлено:
Вт 4 Февраль 2014, 06:10
|
  |
| Alex9111310 писал(а): |
Кто какую печку посоветует , конечно хотелось бы камино-печь смотрящую в зал , с другой стороны плиту на 1-2 комфорки .
Кто и какую мог бы посоветовать и где в данном случае её поставить , и кто бы мог поспособствовать с порядовкой , так как планирую строить сам . Хотелось бы красивую , над которой можно было бы ну оочень постараться ))) |
там одной каминопечью можно отопить те две комнаты всего 37 м2.
(Кстати баня там вообще нипричем она далеко и будет иметь свою печь, банную)
|
|
|
|
  |
 |
Alex9111310
Зарегистрирован: Пн 3 Февраль 2014, 17:30
Сообщения: 5
Регион: Нижний Новгород
|
Добавлено:
Вт 4 Февраль 2014, 08:13
|
  |
Там гостиная и кухня.......бани в доме не планирую.......то что вы скорее всего имели ввиду это сан узел с душевой . Фундамент , можно сказать ещё не делал .....
|
|
|
|
   |
 |
Андрей_Алексеевич

Зарегистрирован: Пн 13 Декабрь 2010, 19:17
Сообщения: 5940
Регион: малая родина Павлова, Скобелева, Циолковского, Уткиных и др.
|
Добавлено:
Вт 4 Февраль 2014, 08:42
|
  |
Попробуйте примерить к своему срубу вот это:
|
_________________ Печник - милостью и промыслом Божиим.
Печное отопление частного дома и т.п., авторское сопровождение проектов, наставничество в т.ч. дистанционное, партнёрство в кладке печей.
89106130763 МТС
andrejka61@mail.ru
andrej.kuzmischev@yandex.ru
| Описание: |
|
| Размер файла: |
15.16 КБ |
| Просмотров: |
658 раз(а) |

|
| Описание: |
|
| Размер файла: |
23.86 КБ |
| Просмотров: |
590 раз(а) |

|
| Описание: |
|
| Размер файла: |
23.96 КБ |
| Просмотров: |
642 раз(а) |

|
|
|
   |
 |
Alex9111310
Зарегистрирован: Пн 3 Февраль 2014, 17:30
Сообщения: 5
Регион: Нижний Новгород
|
Добавлено:
Вт 4 Февраль 2014, 08:47
|
  |
Владимир Солин уже накидал кучу идей ........
|
|
|
|
   |
 |
Alex9111310
Зарегистрирован: Пн 3 Февраль 2014, 17:30
Сообщения: 5
Регион: Нижний Новгород
|
Добавлено:
Вт 4 Февраль 2014, 09:40
|
  |
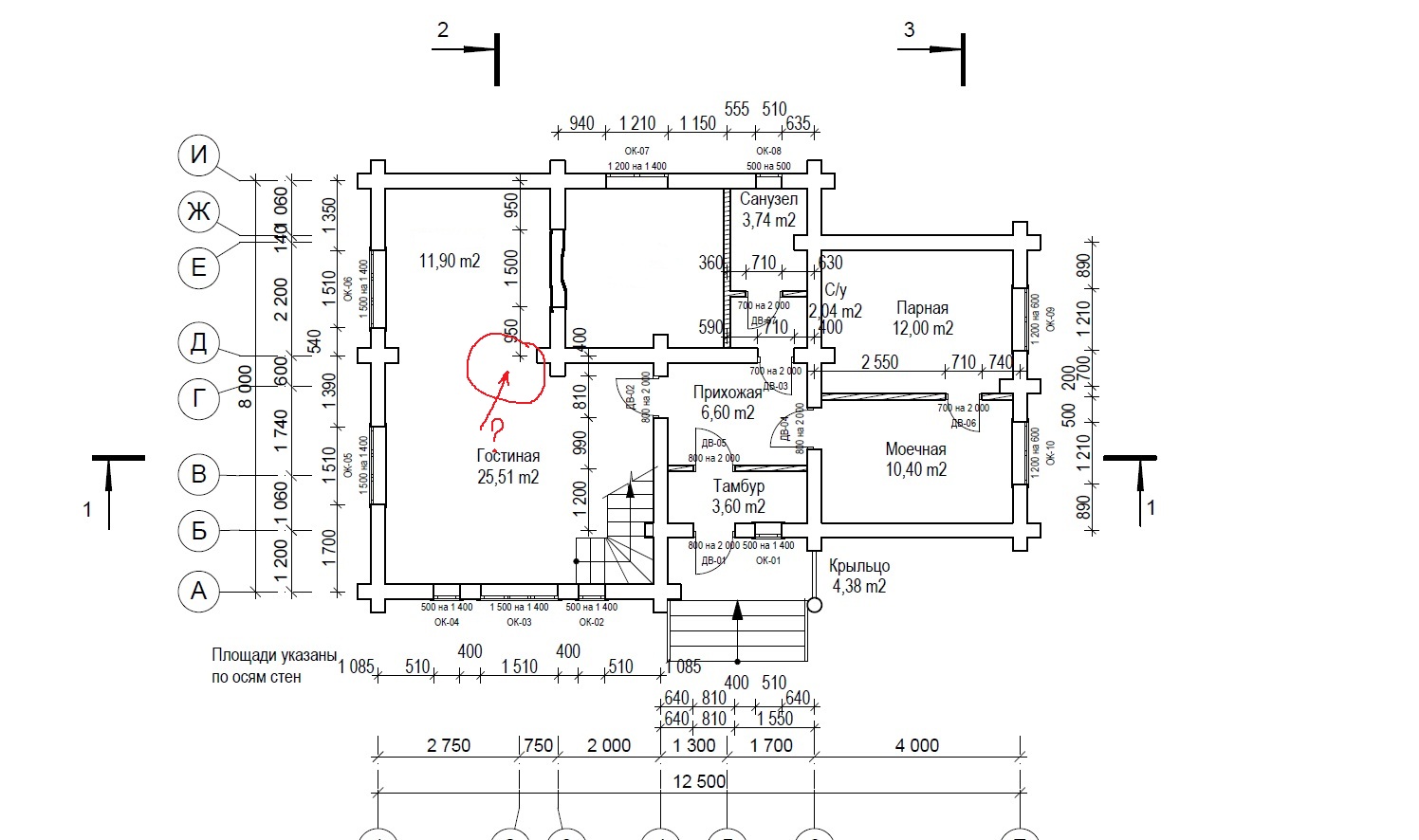
пока остановились на этом варианте , только из камина наверное надо каминопечь .
|
| Описание: |
|
| Размер файла: |
113.47 КБ |
| Просмотров: |
727 раз(а) |

|
|
|
   |
 |
MihVik
Зарегистрирован: Чт 16 Январь 2014, 00:41
Сообщения: 63
Регион: Екатеринбург
|
Добавлено:
Вт 4 Март 2014, 14:14
|
  |
Товарищи профи, поскольку тема прикреплена, решил не постить новую.
Сильно нуждаюсь в вашей помощи по выбору отопительной печи на даче. Площадь сруба маленькая, по внутренним стенам 3,75х4,75м. Сейчас стоит старая печь, сложенная 35 лет назад. Расположена в 30 см от 5м стены, почти посередине. Труба выходит под конёк, как надо.
Беда: кирпич в топке перегорает, сложена из кривого кирпича, потому облицована и эта облицовка трещит и сыпется, чугунные плиты регулярно трескаются, духовка сгорела и мы ей не пользуемся, и многовато жрёт дров.
По этим причинам задумался не ремонтировать, а перекладивыть полностью на новую. Вот не знаю влезу ли в эти же размеры, а ,главное, есть ли более эффективные по этим размерам. Старая печь вроде как 3-х коленка. Просматривая этот форум больше склоняюсь к двухколпаковым каминопечкам со стеклянной дверкой. ХК будет или нет, не принципиально. Основная задача быстро нагреть комнатку, держать тепло до второй утренней топки, и хотелось бы не хавать по 30 палешек. Да, и палешки стандартные 50 см +/- 5 У нас на глазок пилят.
Нижайше прошу совета, а то сам тыкаюсь как котёнок. Вообще переставил бы её, а то всю комнату загромоздила, но тогда под конёк не вывести.
|
| Описание: |
|
| Размер файла: |
208.69 КБ |
| Просмотров: |
676 раз(а) |

|
| Описание: |
|
| Размер файла: |
442.84 КБ |
| Просмотров: |
671 раз(а) |

|
|
|
  |
 |
MihVik
Зарегистрирован: Чт 16 Январь 2014, 00:41
Сообщения: 63
Регион: Екатеринбург
|
Добавлено:
Ср 5 Март 2014, 10:00
|
  |
|
  |
 |
Владимир Солин

Зарегистрирован: Ср 9 Сентябрь 2009, 12:52
Сообщения: 3804
Регион: Череповец
|
Добавлено:
Ср 5 Март 2014, 10:47
|
  |
Есть. Придется снова колпаковую шведку в очередную тему вставлять...
И зачем до топки печку обходить?
Зачем у небольшой печки труба в пятирик?...
|
_________________ САМОназначенный дебил форума в 2017году
| Описание: |
|
| Размер файла: |
111.29 КБ |
| Просмотров: |
766 раз(а) |

|
|
|
  |
 |
MihVik
Зарегистрирован: Чт 16 Январь 2014, 00:41
Сообщения: 63
Регион: Екатеринбург
|
Добавлено:
Ср 5 Март 2014, 11:00
|
  |
Владимир, добрый день. А я вас даже в контакте увидел и хотел там вопрос задать, да меня тема про компы как-то смутила.
Печь строилась местным деревенским "печником". Я тогда и понятия не имел что да как. Кирпич в те времена, и то, по блату доставали. Атопку в ту сторону, потому-что маменька там кухню планировала.
Как-бы там ни было, но печь топит на совесть, с откратой дверкой работает как камин, не дымит.
Так что посоветуете, можно что-то более толковое вписать в этот размер?(то, что Вы показали не треба, плиты не надо) И куда Вы бы сделали топку?
И честное слово, фундамент переместить для меня не проблема, чтоб печь поставить рациональней, но как трубу тогда под конёк.....?
|
|
|
|
  |
 |
MihVik
Зарегистрирован: Чт 16 Январь 2014, 00:41
Сообщения: 63
Регион: Екатеринбург
|
Добавлено:
Ср 5 Март 2014, 11:07
|
  |
| Владимир Солин писал(а): |
И зачем до топки печку обходить? ) |
При данном расположении печки в этом свой плюс,- грязь от дров и золы в закутке комнаты, а не на проходе.
|
|
|
|
  |
 |
Владимир Солин

Зарегистрирован: Ср 9 Сентябрь 2009, 12:52
Сообщения: 3804
Регион: Череповец
|
Добавлено:
Ср 5 Март 2014, 11:15
|
  |
Топочная дверка в кухню - это не правильно. Ее вниз или влево нужно ставить по картинкам...
По размеру 3,5х3,5 симметричная моя ХК7, отличается от печки Анатольича лещадкой в первых колпаках... А вот для дачи этого то и не надо... Нужно бы без футеровки.
ХК10(мин)2 будет получше в таком случае. Без футеровки 1го колпака.
http://forum.stovemaster.ru/viewtopic.php?p=94979#94979
Труба перемещается туда, куда нужно.
|
_________________ САМОназначенный дебил форума в 2017году
|
|
  |
 |
MihVik
Зарегистрирован: Чт 16 Январь 2014, 00:41
Сообщения: 63
Регион: Екатеринбург
|
Добавлено:
Ср 5 Март 2014, 12:42
|
  |
| Владимир Солин писал(а): |
А вот для дачи этого то и не надо... Нужно бы без футеровки.
ХК10(мин)2 будет получше в таком случае. Без футеровки 1го колпака.
|
А не могли бы пояснить, почему без футировки. Не хочется через 10 лет перекладывать. Если понимаю правильно, то ХК10 будет нагреваться справа и сзади? Лучше бы по боковым стенкам. И вообше мне ХК,как козе баян, лучше бы полку какую для сугрева одёжки. И, тоже, можно и без неё, на перекрыше можно носки с варежками скидать.
|
|
|
|
  |
 |
Владимир Солин

Зарегистрирован: Ср 9 Сентябрь 2009, 12:52
Сообщения: 3804
Регион: Череповец
|
Добавлено:
Ср 5 Март 2014, 12:47
|
  |
Колпак без футеровки начинает теплеть уже через час после протопки. С футеровкой - через 2 часа... Стенка со стороны топки будет прогреваться дольше всех, остальные стенки пораньше.
Топка футерована - красные кирпичи защищены шамотом.
Вот отопительная печка.
http://forum.stovemaster.ru/viewtopic.php?p=78882#78882
|
_________________ САМОназначенный дебил форума в 2017году
|
|
  |
 |
MihVik
Зарегистрирован: Чт 16 Январь 2014, 00:41
Сообщения: 63
Регион: Екатеринбург
|
Добавлено:
Ср 5 Март 2014, 15:01
|
  |
Мне кажется, что дачный вариант люди трактуют не совсем правильно. 1 час нагревается колпак или 2 не сильно принципиально. Теплоёмким массивом является не только печь, а и весь дом. Пока все стены, полы и потолки и даже мебель, всё в своей массе не прогреется, что толку от одного колпака.
Сейчас я, приехав в холодный дом быстрее нагреваю внутренний объём открытой дверкой, излучением от огня. Масса намного позже набирает, часа через 4-5 (при минус 15 за бортом). Да и нельзя, как мне кажется, печь сконструировать теплоёмкую и в тоже время, быстронагревающуюся. Одно другому противоречит.
Был опыт проживания со Шведкой (печкой, разумеется ). Так мало хорошего. С вечера баня, а к утру дубак-дубаком.
|
|
|
|
  |
 |
MihVik
Зарегистрирован: Чт 16 Январь 2014, 00:41
Сообщения: 63
Регион: Екатеринбург
|
Добавлено:
Ср 5 Март 2014, 15:05
|
  |
Пока, Владимир, приведенные примеры детально не просмотрел (времени нет, попозже). Но это, вроде просто колпаковые варианты. Бывают в таких габаритах двухколпаковые? А то мне кипятить потолок не резон, Высота всего 2,20.
|
|
|
|
  |
 |
Владимир Солин

Зарегистрирован: Ср 9 Сентябрь 2009, 12:52
Сообщения: 3804
Регион: Череповец
|
Добавлено:
Ср 5 Март 2014, 15:06
|
  |
У всех 2 колпака.
|
_________________ САМОназначенный дебил форума в 2017году
|
|
  |
 |
MihVik
Зарегистрирован: Чт 16 Январь 2014, 00:41
Сообщения: 63
Регион: Екатеринбург
|
Добавлено:
Сб 8 Март 2014, 21:30
|
  |
Ну, вот, только 8 Марта и добрался до порядовки.
Владимир, сегодня разбирал и собирал по кирпичику вашу ОП 10 , возникли вопросы. Если мониторите форум, скажите
1.зачем выступают кирпичи в 22 и 32 рядах. Можно предположить, что в 22 из-за уголка и зазора, но ведь можно подрезать кирпич. И тогда зачем в 32-ом ?
2. в 32-ом ряду три кирпича лежат практически не на чём (на рис. помечены тёмным)
3. Верхнюю прочистку с лицевой стороны не лучше ли передвинуть левее на пол.кирпича?
4. Высота печи для моих условий великовата, можно камеру и верхний колпак сократить по 1 ряду?
А это вообще рабочий вариант или только проект?
|
| Описание: |
|
| Размер файла: |
221.88 КБ |
| Просмотров: |
669 раз(а) |

|
|
|
  |
 |
Владимир Солин

Зарегистрирован: Ср 9 Сентябрь 2009, 12:52
Сообщения: 3804
Регион: Череповец
|
Добавлено:
Сб 8 Март 2014, 21:49
|
  |
Из-за уголка. И красные кирпичи лежат совсем неплохо на краях других кирпичей.
Хотите попробовать резать кирпичи вдоль - попробуйте. поймете как это невесело...
Уменьшать можно. Проект аналогичен рабочим.
|
_________________ САМОназначенный дебил форума в 2017году
|
|
  |
 |
|
|
|
Следующая тема
Предыдущая тема
Вы не можете начинать темы Вы не можете отвечать на сообщения Вы не можете редактировать свои сообщения Вы не можете удалять свои сообщения Вы не можете голосовать в опросах Вы не можете добавлять приложения в этом форуме Вы можете скачивать файлы в этом форуме
|
|