Некоммерческое партнерство Альянс Печных Дел Мастера
 RSS  • FAQ  •  Поиск  •  Пользователи  •  Группы   •  Регистрация   •  Избранные темы   •  Профиль  •  Войти и проверить личные сообщения  •  Чат  •  Вход





 Каменка из кирпичной буржуйки Следующая тема
Предыдущая тема
Начать новую темуОтветить на тему
Автор Сообщение
Виктор_А



Зарегистрирован: Чт 6 Январь 2011, 17:01
Сообщения: 850
Регион: МО г.Серпухов

СообщениеДобавлено: Ср 19 Декабрь 2012, 17:53 Ответить с цитатойВернуться к началу

1 Нет необходимости.
2 Чем толще, тем дольше прослужит.
Посмотреть профильОтправить личное сообщениеОтправить e-mailПозвонить автору
Alex157



Зарегистрирован: Пн 17 Декабрь 2012, 07:46
Сообщения: 26
Регион: Владимирская обл

СообщениеДобавлено: Ср 19 Декабрь 2012, 18:00 Ответить с цитатойВернуться к началу

Спасибо :hi
Если наступит весна, сварю nyam
Посмотреть профильОтправить личное сообщение
Alex157



Зарегистрирован: Пн 17 Декабрь 2012, 07:46
Сообщения: 26
Регион: Владимирская обл

СообщениеДобавлено: Чт 20 Декабрь 2012, 15:16 Ответить с цитатойВернуться к началу

Первая сварка сложной конструкции. Подскажите, где не правильно:hi
Прикинул так:

1. обварить печку 50-ым уголком, (косяк на рисунке удалил, уголок был нарисован неправильно)
2. снять с печки раму, обварить листом, получится корпус.
3. обварить уголком корпус по аналогии с печкой, снять получившуюся раму
4. сварить усеченную пирамиду
5. основание пирамиды сварить с рамой 3 (буртик на рисунке был лишний).
6. лежит на сварочном столе 5, надевается корпус и приваривается отсекатель.
Отсекатель из трех полос. Примерил в сборе с корпусом, прихватил. Снял корпус, обварил.
7. 1/2 для ВВ и угол 120 прихватить, в процессе сварки отрезать лишнее установив больший ток.

Может где не так?

Что-то большое получилось корыто.
Может уменьшить, сделав дно не 230х300, а к примеру 200х270? По принципу лучше меньше, да лучше. Задача, как ее понимаю раскалить камни, но не обязательно 120кг, достаточно 60 (для одного). Прав или ошибаюсь?



финал-01.JPG
 Описание:
 Размер файла:  46.65 КБ
 Просмотров:  836 раз(а)

финал-01.JPG


Посмотреть профильОтправить личное сообщение
Виктор_А



Зарегистрирован: Чт 6 Январь 2011, 17:01
Сообщения: 850
Регион: МО г.Серпухов

СообщениеДобавлено: Чт 20 Декабрь 2012, 18:36 Ответить с цитатойВернуться к началу

Зависит от объёма парной, а не от количества принимающих процедуру. Каналы для ДГ, как говорится, "то что доктор прописал".
Посмотреть профильОтправить личное сообщениеОтправить e-mailПозвонить автору
Alex157



Зарегистрирован: Пн 17 Декабрь 2012, 07:46
Сообщения: 26
Регион: Владимирская обл

СообщениеДобавлено: Чт 20 Декабрь 2012, 19:02 Ответить с цитатойВернуться к началу

Виктор_А писал(а):
Зависит от объёма парной, а не от количества принимающих процедуру. Каналы для ДГ, как говорится, "то что доктор прописал".

Размер парной.
Прочитал, что самый минимум 2,5х2,5х2,3м. Такую и буду делать. Каменка будет целиком в парной.
Посмотреть профильОтправить личное сообщение
Alex157



Зарегистрирован: Пн 17 Декабрь 2012, 07:46
Сообщения: 26
Регион: Владимирская обл

СообщениеДобавлено: Пт 21 Декабрь 2012, 12:03 Ответить с цитатойВернуться к началу

Нагрев до малинового на фото.
На его основании такой вариант.
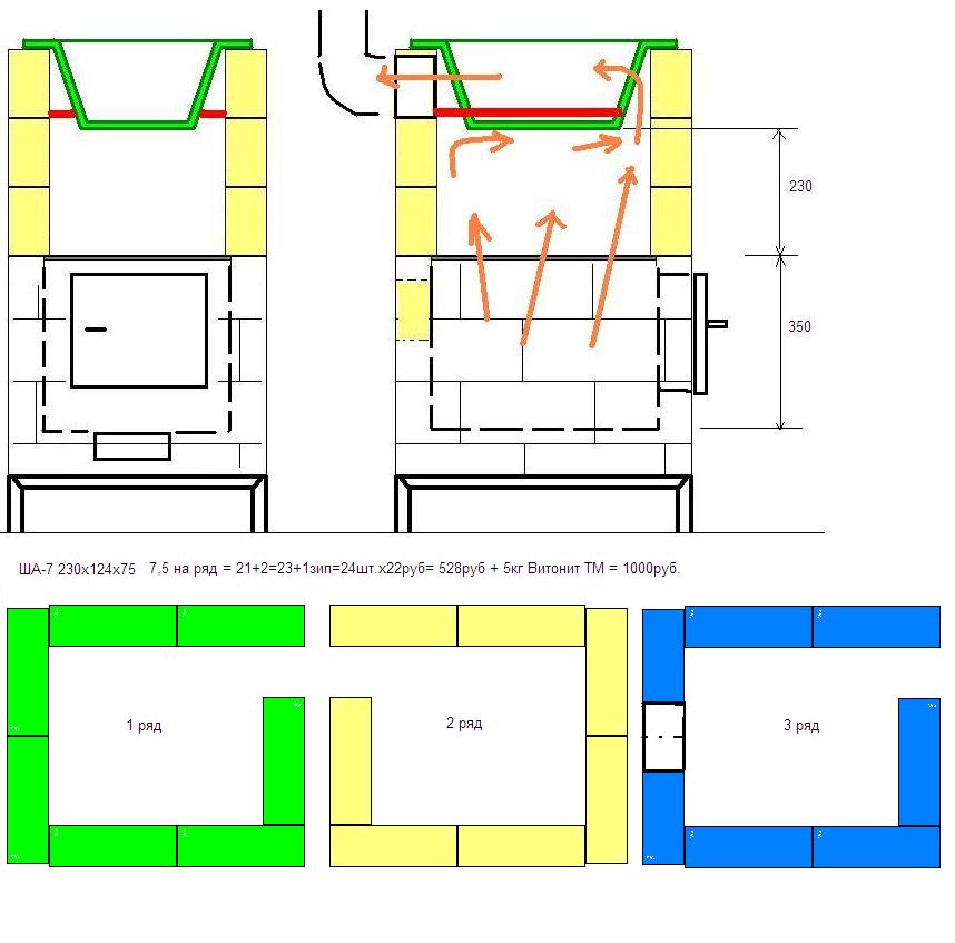
1. нарастить печку в высоту шамотом ША-7 (230х124х75). усилить кладку штырями по аналогии с нагелями, применяемыми в кладке деревянного бруса
2. поставить чугунную плиту, оставив самую большую конфорку (185-165мм)
3. на конфорку поставить трубу d180 с толщиной стенки 8мм
4. переход на диаметр 100.
5. в барабане от стиральной машины (нерж.) удалить боковые стенки, заложить
чугун и камни.

Как считаете? :hi



2_вариант.JPG
 Описание:
 Размер файла:  50.44 КБ
 Просмотров:  538 раз(а)

2_вариант.JPG



rAl.Shekh1-300.jpg
 Описание:
 Размер файла:  28.15 КБ
 Просмотров:  829 раз(а)

rAl.Shekh1-300.jpg


Посмотреть профильОтправить личное сообщение
Виктор_А



Зарегистрирован: Чт 6 Январь 2011, 17:01
Сообщения: 850
Регион: МО г.Серпухов

СообщениеДобавлено: Пт 21 Декабрь 2012, 13:03 Ответить с цитатойВернуться к началу

Для информации. В Вашем варианте всё в трубу. Вот схема печи с Вашего фото.



shema_vezuv.jpg
 Описание:
 Размер файла:  109.27 КБ
 Просмотров:  852 раз(а)

shema_vezuv.jpg


Посмотреть профильОтправить личное сообщениеОтправить e-mailПозвонить автору
Alex157



Зарегистрирован: Пн 17 Декабрь 2012, 07:46
Сообщения: 26
Регион: Владимирская обл

СообщениеДобавлено: Пт 21 Декабрь 2012, 13:56 Ответить с цитатойВернуться к началу

Понятно. Спасибо за просвещение :hi
Тогда конечно назад.
А как Вам идея увеличить высоту таким образом, с нагелями? Всего три ряда.
Не надо будет обкладывать кирпичом. Железную часть сварить, как на первом варианте.



2_вариант.JPG
 Описание:
 Размер файла:  39.59 КБ
 Просмотров:  851 раз(а)

2_вариант.JPG


Посмотреть профильОтправить личное сообщение
Alex157



Зарегистрирован: Пн 17 Декабрь 2012, 07:46
Сообщения: 26
Регион: Владимирская обл

СообщениеДобавлено: Сб 22 Декабрь 2012, 14:25 Ответить с цитатойВернуться к началу

Видимо надо оставить попытки повторить покупной вариант. Получится заведомо хуже.
Там все компактно, для экономии места, малиновый металл - это конечно минус, но за компакт надо чем-то расплачиваться.
У меня же проблемы экономии места нет. Тем более, что буду собирать стены и ставить дверь после того, как установлю печку.

Разнесу каменку и обогрев парной по отдельности.
Первая часть - каменка. Вторая будет щиток обогрева, о нем потом.
Доработка моей печки будет заключаться только в удалении чугунной плиты. На ее место сварю колпак.

Что скажете о таком варианте? :hi



колпак1.JPG
 Описание:
 Размер файла:  43.22 КБ
 Просмотров:  596 раз(а)

колпак1.JPG


Посмотреть профильОтправить личное сообщение
Alex157



Зарегистрирован: Пн 17 Декабрь 2012, 07:46
Сообщения: 26
Регион: Владимирская обл

СообщениеДобавлено: Пн 7 Январь 2013, 08:41 Ответить с цитатойВернуться к началу

Всех со светлым праздником ХР :hi

Стал прикидывать материал.
Что-то толстое железо негуманно стоит. Может такой вариант?
Шамот на ребро будет держать Ветонит ТМ?



печь_01-2013.JPG
 Описание:
 Размер файла:  46.79 КБ
 Просмотров:  813 раз(а)

печь_01-2013.JPG


Посмотреть профильОтправить личное сообщение
pe4ka



Зарегистрирован: Ср 23 Сентябрь 2009, 17:36
Сообщения: 1918
Регион: Туймазы

СообщениеДобавлено: Пн 7 Январь 2013, 18:38 Ответить с цитатойВернуться к началу

У шведов по черному топят и как в кафе вытяжной зонт ставят.Ты зонт с задвижкой сделай и когда чистое горение без дыма по русски по черному топи-получишь инфракрасную теплую камеру- по черному не гниет баня.Только механизм нагрева воды надо прикинуть....

_________________
окажу консультации по кладке печей каминов и их ремонту д51055 код8-34782 сот 8-9173752622 г.Туймазы башкирия
Посмотреть профильОтправить личное сообщениеОтправить e-mail
Alex157



Зарегистрирован: Пн 17 Декабрь 2012, 07:46
Сообщения: 26
Регион: Владимирская обл

СообщениеДобавлено: Пн 7 Январь 2013, 23:26 Ответить с цитатойВернуться к началу

Smile
Посмотреть профильОтправить личное сообщение
Alex157



Зарегистрирован: Пн 17 Декабрь 2012, 07:46
Сообщения: 26
Регион: Владимирская обл

СообщениеДобавлено: Вт 8 Январь 2013, 02:01 Ответить с цитатойВернуться к началу

Не знаю, что ответить. Вроде человек ответил и неудобно как-то...однако мне не надо про то, что ответил.

Мой вопрос - Ветонит ТМ удержит три ряда шамота на ребро?
Посмотреть профильОтправить личное сообщение
Евгений Колчин



Зарегистрирован: Чт 3 Октябрь 2002, 06:26
Сообщения: 10144
Регион: Москва

СообщениеДобавлено: Вт 8 Январь 2013, 11:33 Ответить с цитатойВернуться к началу

Alex157 писал(а):
Ветонит ТМ удержит три ряда шамота на ребро?
удержит ... если еще и перевязка стенок будет

_________________
************************************
Посмотреть профильОтправить личное сообщениеОтправить e-mailПосетить сайт автораПозвонить авторуICQ Number
Alex157



Зарегистрирован: Пн 17 Декабрь 2012, 07:46
Сообщения: 26
Регион: Владимирская обл

СообщениеДобавлено: Вт 8 Январь 2013, 12:29 Ответить с цитатойВернуться к началу

Евгений Колчин писал(а):
Alex157 писал(а):
Ветонит ТМ удержит три ряда шамота на ребро?
удержит ... если еще и перевязка стенок будет
Перевязка конечно будет.
Вот схемка с порядовкой.
Но т.к. ни разу не делал, прошу поправить, если что не так...
Смущает, что выход какой-то невдалый (в третьем ряду). Не принципиально, если сместить его чуть ниже? Тогда перевязка будет нормальная?
Или правильней во втором ряду положить по центру, а по краям напилить четвертинок?



печь_01-2013.JPG
 Описание:
 Размер файла:  71.31 КБ
 Просмотров:  848 раз(а)

печь_01-2013.JPG


Посмотреть профильОтправить личное сообщение
Alex157



Зарегистрирован: Пн 17 Декабрь 2012, 07:46
Сообщения: 26
Регион: Владимирская обл

СообщениеДобавлено: Вт 8 Январь 2013, 21:14 Ответить с цитатойВернуться к началу

Отвечу уважаемому pe4ka про каменку по черному. Я ее боюсь это раз, второе - если в холодное время придется заночевать на даче, а свет вырубили, то спасусь от холода переспав в парилке (отопление дачи электроконвекторами).
Третье, и пожалуй самое главное в баньке по-белому - топить можно мусором, коего дофига скапливается на дачном участке.
Песню Высоцкого знаю. "Протопи...ты мне баньку по-белому, я от белого света отвык..."

Написал, что положу на Витонит ТМ. Но не спросил, правильно ли именно его применять в кладке на ребро? :hi
Посмотреть профильОтправить личное сообщение
Alex157



Зарегистрирован: Пн 17 Декабрь 2012, 07:46
Сообщения: 26
Регион: Владимирская обл

СообщениеДобавлено: Сб 31 Август 2013, 00:31 Ответить с цитатойВернуться к началу

Виктор_А писал(а):
Зависит от объёма парной, а не от количества принимающих процедуру. Каналы для ДГ, как говорится, "то что доктор прописал".
Парная 2,4х2,4м. Потолок наклонный от 1,75 до 2,25м.
Хочу доработать печку до каменки.
Ширина и глубина 460, высота 400. Масса 80кг.
Щели ликвидирую витонитом.
Будет результат?



с барабаном1.jpg
 Описание:
 Размер файла:  472.06 КБ
 Просмотров:  747 раз(а)

с барабаном1.jpg



печка1.JPG
 Описание:
 Размер файла:  76.97 КБ
 Просмотров:  734 раз(а)

печка1.JPG



печка.jpg
 Описание:
 Размер файла:  69.13 КБ
 Просмотров:  748 раз(а)

печка.jpg



печка слева.jpg
 Описание:
 Размер файла:  87.68 КБ
 Просмотров:  767 раз(а)

печка слева.jpg


Посмотреть профильОтправить личное сообщение
Александр-Ижевск



Зарегистрирован: Вт 23 Июль 2013, 12:04
Сообщения: 59
Регион: Ижевск

СообщениеДобавлено: Пн 7 Октябрь 2013, 16:14 Ответить с цитатойВернуться к началу

Здраствуйте такую печь буржуйку было бы хорошо облицевать керамическим кирпичем под расшивку для большей теплоемкости и пожаробезопасности, вот видео с ю туба этим летом делал что то похожее времени ушло часов 20 и кирпича на 3 тыс. руб. https://www.youtube.com/watch?v=KQxfi1FeYUQ
Посмотреть профильОтправить личное сообщениеICQ Number
Показать сообщения:      
Начать новую темуОтветить на тему


 Перейти:   



Следующая тема
Предыдущая тема
Вы не можете начинать темы
Вы не можете отвечать на сообщения
Вы не можете редактировать свои сообщения
Вы не можете удалять свои сообщения
Вы не можете голосовать в опросах
Вы не можете добавлять приложения в этом форуме
Вы можете скачивать файлы в этом форуме




Проект форум печников "Альянс. Печных Дел Мастера" © 2006-2025